AN BẢO KHANG GROUP

Số tầng nhà được xây dựng tại TPHCM

số tầng nhà được xây dựng

Nhà dân tại Tp HCM được xây dựng mấy tầng???

An Bảo Khang xin chào quý vị. Hôm nay chúng tôi chia sẻ một số thông tin cũng như giải đáp những câu hỏi của chủ đầu tư về số tầng nhà được xây dựng tại TP HCM để quý vị tham khảo.

Theo quy định số 135/2007 – QĐ – UBND của Thành Phố Hồ Chí Minh quy định về kiến trúc nhà liên kế trong các khu đô thị hiện hữu và sau đó được sửa đổi một số điều theo quyết định số 45/2009 QĐ – UBND, trong quyết định này chúng ta có thể tính toán được số tầng nhà được xây dựng tạị TP HCM.

Trước tiên, quý vị cần đọc qua một số khái niệm trong bài viết để dễ hiểu hơn.

Lộ giới: Hay còn gọi là chỉ giới đường đỏ (ranh giới xây dựng) là một thuật ngữ pháp lý xây dựng sử dụng trong các bản vẽ, văn bản pháp luật của nhà nước ban hành. Lộ giới là bề rộng đường dự kiến sẽ mở rộng trong tương lai.

Ví dụ: Đường trước lô đất hiện tại trước nhà Bạn là 2 mét nhưng có thể trong tương lai đường sẽ rộng là 10 mét, như vậy lộ giới đường là 10 mét và số tầng nhà được xây dựng cũng phụ thuộc vào lộ giới này (quý vị có thể kiểm tra các thông tin quy hoạch này tại chính quyền địa phương).

Số tầng nhà: Theo định nghĩa về số tầng của cơ quan nhà nước thì cách gọi mà chúng ta thường gọi khác nhau một chút, cụ thể như sau: Quý vị thường gọi là tầng trệt nhưng trong giấy phép xây dựng gọi là tầng 1 và tầng 1 (lầu 1) thì GPXD gọi là tầng 2.

Số tầng nhà được xây dựng và chiều cao nhà.

Số tầng nhà và chiều cao công trình được phụ thuộc vào lộ giới đường theo bảng sau:

Số tầng nhà được xây dựng TPHCM
Số tầng nhà được phụ thuộc vào chiều rộng lộ giới (chiều rộng con đường vào nhà Bạn)
Số tầng nhà được xây dựng TPHCM
Bảng 2: Chiều cao tầng công trình phụ thuộc vào chiều rộng lộ giới (chiều rộng đường trước nhà)

Quy định về các quận nội thành và ngoại thành

Các quận nội thành

  • Quận nội thành trung tâm (7 quận) gồm: Quận 1, 3, 5, 4, 10, Phú Nhuận, Bình Thạnh.
  • Quận nội thành (9 quận): Quận 2, 6, 7, 8, 10, 11, Tân Bình, Tân Phú và Gò Vấp.

Các quận ngoại thành (4 quận, 4 huyện):

  • Quận 9, quận 12, Thủ Đức, Bình Tân, huyện Bình Chánh, Củ Chị, huyện Nhà Bè, huyện Hóc Môn.

Nhà phố được xây dựng tối đa 3 tầng khi chiều rộng lộ giới <3.5m

Chiều rộng lộ giới (L) < 3.5m, số tầng nhà được xây dựng là 3 tầng

  • Chiều rộng lộ giới < 3,5m thì nhà được xây tối đa 3 tầng, chiều cao tối đa công trình không quá 13.6 mét.
  • Chiều cao tầng 1 (tầng trệt) tối đa 3,8 mét, có nghĩa nhà quý vị không thể bố trí tầng lửng.
  • Trường hợp được xây dựng tầng lửng khi chiều rộng lộ giới > 3.5m. Lúc đó cao độ nền trệt đến sàn lầu 1 là 5.8m và được thiết kế tầng lửng.
Số tầng nhà được xây dựng TPHCM
Lộ giới dưới 3,5 m được phép xây dựng 3 tầng

Nhà phố được xây dựng tối đa 4 tầng khi lộ giới có chiều rộng từ 3.5m – 7m

Chiều rộng lộ giới (L) từ 3,5m đến 7.0m, nhà được xây dựng tối đa 4 tầng

Trường hợp 1: số tầng nhà được xây dựng là 3 tầng

  • Quy mô tối đa 3 tầng: Khi không có các yếu tố tăng tầng nào trong (bảng 2).
  • Chiều cao tầng 1 đến sàn tầng 2 là: 5.8m có nghĩa quý vị có thể làm tầng lửng.
  • Chiều cao tối đa công trình là 13,6m.
Số tầng nhà được xây dựng TPHCM
Số tầng nhà được xây dựng TPHCM

Trường hợp 2: Số tầng nhà được xây dựng là 4 tầng

  • Quy mô tối đa 4 tầng (tầng 4 có khoảng giật lùi).
  • Khi vị trí xây dựng thuộc khu vực quận trung tâm Thành Phố hoặc trung tâm cấp Quận (bảng 2)
  • Chiều cao tối đa tầng 1 đến sàn tầng 2 là: 5.8m có nghĩa là quý vị có thể làm tầng lửng.
  • Chiều cao công trình cao tối đa là 17m.
Số tầng nhà được xây dựng TPHCM
Số tầng nhà được xây dựng TPHCM

Nhà phố được phép xây dựng 6 tầng khi chiều rộng lộ giới 7m – 12m

Chiều rộng lộ giới (L) từ 7.0m đến 12.0m, số tầng được phép xây dựng là 4 tầng – 6 tầng.

Trường hợp 1: Số tầng nhà được xây dựng là 4 tầng, khi

  • Quy mô tối đa 4 tầng: Khi không có các yếu tố tăng tầng chiều cao (bảng 2)
  • Chiều cao tầng 1 đến sàn tầng 2 là: 5.8m có nghĩa quý vị có thể làm tầng lững.
  • Chiều cao tối đa công trình là 17m.
Số tầng nhà được xây dựng TPHCM
Đường có lộ giới từ 7m – 12m được xây tối đa bao nhiêu tầng 

Trường hợp 2: Được xây dựng tối đa 5 tầng

  • Quy mô tối đa 5 tầng (tầng 5 có khoảng lùi).
  • Chiều cao tối đa tầng 1 đến sàn tầng 2 là: 5.8m có nghĩa là quý vị có thể làm tầng lửng.
  • Chiều cao công trình cao tối đa là 20.4m
  • Khi có 1 trong 2 yếu tố tăng tầng cao sau đây:
    • Thuộc khu vực quận trung tâm Thành Phố hoặc trung tâm cấp quận.
    • Khu vực công trình nằm trên lô đất lớn
số tầng nhà được xây dựng
Nhà được xây mấy tầng

Trường hợp 3: Được phép xây dựng tối đa 6 tầng

  • Quy mô tối đa 6 tầng (tầng 5,6 có khoảng lùi).
  • Chiều cao tối đa tầng 1 đến sàn tầng 2 là: 5.8m có nghĩa là quý vị có thể làm tầng lửng.
  • Chiều cao công trình cao tối đa là 23.8m
  • Khi có cả 2 yếu tố tăng tầng cao sau đây:
    • Thuộc khu vực quận trung tâm Thành Phố hoặc trung tâm cấp quận.
    • Khu vực công trình nằm trên lô đất lớn.
Số tầng nhà được xây dựng TPHCM
Số tầng nhà được xây dựng TPHCM

Nhà phố được phép xây dựng 7 tầng khi chiều rộng lộ giới từ 12 – 20m

Lộ giới (L) từ 12m đến 20m, số tầng nhà được xây dựng từ 4 tầng – 7 tầng, với các trường hợp sau:

Trường hợp 1: Được phép xây dựng 4 tầng

  • Quy mô tối đa 4 tầng: Khi không có các yếu tố tăng tầng cao
  • Chiều cao tầng 1 đến sàn tầng 2 là: 5.8m có nghĩa quý vị có thể làm tầng lững.
  • Chiều cao tối đa công trình là 17m.
số tầng nhà được xây dựng
Số tầng nhà được xây dựng TPHCM

Trường hợp 2: Được xây dựng 5 tầng

  • Quy mô tối đa 5 tầng.
  • Chiều cao tối đa tầng 1 đến sàn tầng 2 là: 5.8m có nghĩa là quý vị có thể làm tầng lửng.
  • Chiều cao công trình cao tối đa là 20.4m
  • Khi có 1 trong 3 yếu tố tăng tầng cao sau đây:
    • Thuộc khu vực quận trung tâm Thành Phố hoặc trung tâm cấp quận.
    • Khu vực công trình nằm trên lô đất lớn.
    • Nằm trên trục đường thương mại – dịch vụ.
số tầng nhà được xây dựng
Số tầng nhà được xây dựng tại Tp HCM

Trường hợp 3: Được phép xây dựng 6 tầng

  • Quy mô tối đa 6 tầng. (tầng 6 có khoảng lùi).
  • Chiều cao tối đa tầng 1 đến sàn tầng 2 là: 5.8m có nghĩa là quý vị có thể làm tầng lửng.
  • Chiều cao công trình cao tối đa là 23.8m
  • Khi có 2 trong 3 yếu tố tăng tầng cao sau đây:
    • Thuộc khu vực quận trung tâm Thành Phố hoặc trung tâm cấp quận.
    • Khu vực công trình nằm trên lô đất lớn.
    • Nằm trên trục đường thương mại – dịch vụ.
số tầng nhà được xây dựng
Số tầng nhà được xây dựng tại Sài Gòn

Trường hợp 4: Được phép xây dựng 7 tầng

  • Quy mô tối đa 7 tầng. (tầng 6,7 có khoảng lùi).
  • Chiều cao tối đa tầng 1 đến sàn tầng 2 là: 5.8m có nghĩa là quý vị có thể làm tầng lửng.
  • Chiều cao công trình cao tối đa là 27.2m.
  • Khu vực công trình nằm trên lô đất lớn.
    • Thuộc khu vực quận trung tâm Thành Phố hoặc trung tâm cấp quận.
    • Khi có cả 3 yếu tố tăng tầng cao sau đây:
    • Nằm trên trục đường thương mại – dịch vụ.

số tầng nhà được xây dựng

    Số tầng nhà được xây dựng tối đa khi lộ giới từ 12m – 20m

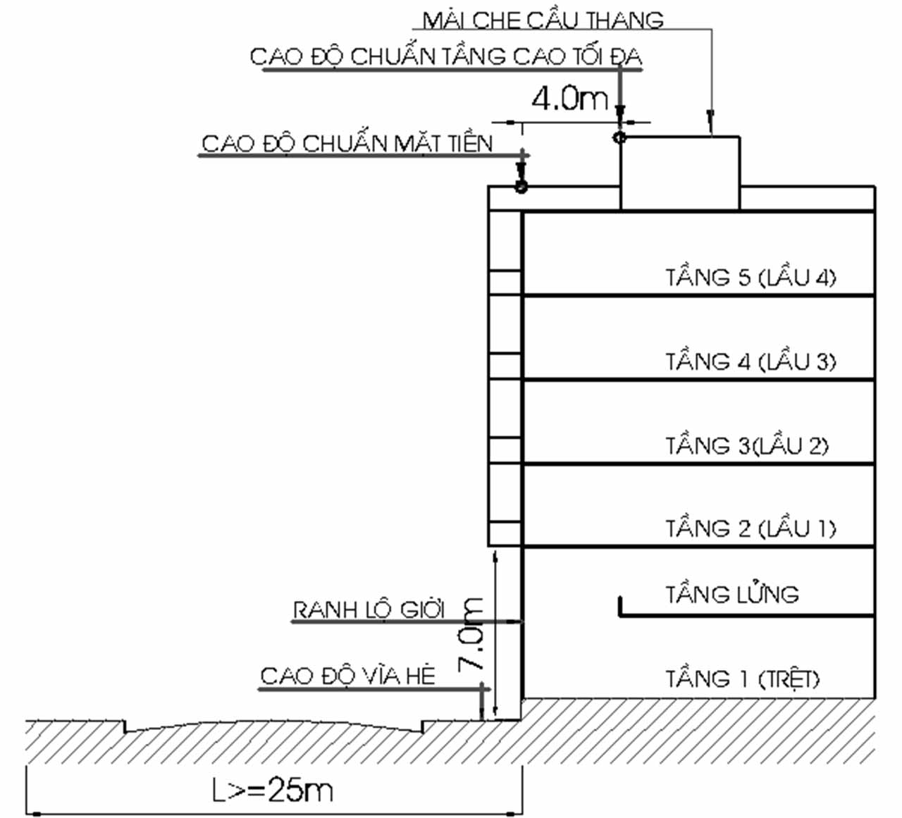
Nhà phố được xây dựng 8 tầng khi lộ giới từ 20 – 25m

Khi lộ giới từ 20m đến 25m, số tầng được xây dựng là từ 5 tầng – 8 tầng, theo các trường hợp sau.

Trường hợp 1: Được xây dựng tối đa 5 tầng khi

  • Quy mô tối đa 5 tầng: Khi không có các yếu tố tăng tầng cao
  • Chiều cao tầng 1 đến sàn tầng 2 là: 7m có nghĩa quý vị có thể làm tầng lững.
  • Chiều cao tối đa công trình là 21.6m.
số tầng nhà được xây dựng
Số tầng nhà được xây dựng khi lộ giới từ 20m – 25m tại Tp HCM

Trường hợp 2: Được xây dựng 6 tầng 

  • Quy mô tối đa 6 tầng.
  • Chiều cao tối đa tầng 1 đến sàn tầng 2 là: 7.0m có nghĩa là quý vị có thể làm tầng lửng.
  • Chiều cao công trình cao tối đa là 25m
  • Khi có 1 trong 3 yếu tố tăng tầng cao sau đây:
    • Thuộc khu vực quận trung tâm Thành Phố hoặc trung tâm cấp quận.
    • Khu vực công trình nằm trên lô đất lớn.
    • Nằm trên trục đường thương mại – dịch vụ.
số tầng nhà được xây dựng

Trường hợp 3: Được phép xây dựng nhà 7 tầng

  • Quy mô tối đa 7 tầng (tầng 7 có khoảng lùi)
  • Chiều cao tối đa tầng 1 đến sàn tầng 2 là: 7.0m có nghĩa là quý vị có thể làm tầng lửng.
  • Chiều cao công trình cao tối đa là 28.4m
  • Khi có 2 trong 3 yếu tố tăng tầng cao sau đây:
    • Thuộc khu vực quận trung tâm Thành Phố hoặc trung tâm cấp quận.
    • Khu vực công trình nằm trên lô đất lớn.
    • Nằm trên trục đường thương mại – dịch vụ.
số tầng nhà được xây dựng
Số tầng nhà được xây dựng

Trường hợp 4: Được phép xây dựng nhà 8 tầng

  • Quy mô tối đa 8 tầng.
  • Chiều cao tối đa tầng 1 đến sàn tầng 2 là: 7.0m có nghĩa là quý vị có thể làm tầng lửng.
  • Chiều cao công trình cao tối đa là 31.8m
  • Khi có cả 3 yếu tố tăng tầng cao sau đây:
    • Thuộc khu vực quận trung tâm Thành Phố hoặc trung tâm cấp quận.
    • Khu vực công trình nằm trên lô đất lớn.
    • Nằm trên trục đường thương mại – dịch vụ.
số tầng nhà được xây dựng
Số tầng nhà được xây dựng

Chiều rộng lộ giới > 25m được xây dựng mấy tầng.

Trường hợp 1: Được xây dựng 5 tầng

  • Quy mô tối đa 5 tầng: Khi không có các yếu tố tăng tầng cao
  • Chiều cao tầng 1 đến sàn tầng 2 là: 7m có nghĩa quý vị có thể làm tầng lững.
  • Chiều cao tối đa công trình là 21.6m.
số tầng nhà được xây dựng
Số tầng nhà được xây dựng tại Tp HCM khi lộ giới lớn hơn 25m

Trường hợp 2: Được phép xây dựng 6 tầng

  • Quy mô tối đa 6 tầng.
  • Chiều cao tối đa tầng 1 đến sàn tầng 2 là: 7.0m có nghĩa là quý vị có thể làm tầng lửng.
  • Chiều cao công trình cao tối đa là 25m
  • Khi có 1 trong 3 yếu tố tăng tầng cao sau đây:
    • Thuộc khu vực quận trung tâm Thành Phố hoặc trung tâm cấp quận.
    • Khu vực công trình nằm trên lô đất lớn.
    • Nằm trên trục đường thương mại – dịch vụ.
số tầng nhà được xây dựng
Quy định số tầng khi xây nhà tại Tp HCM

Trường hợp 3: Được phép xây dựng tối đa 7 tầng khi

  • Quy mô tối đa 7 tầng (tầng 7 có khoảng lùi)
  • Chiều cao tối đa tầng 1 đến sàn tầng 2 là: 7.0m có nghĩa là quý vị có thể làm tầng lửng.
  • Chiều cao công trình cao tối đa là 28.4m
  • Khi có 2 trong 3 yếu tố tăng tầng cao sau đây:
    • Thuộc khu vực quận trung tâm Thành Phố hoặc trung tâm cấp quận.
    • Khu vực công trình nằm trên lô đất lớn.
    • Nằm trên trục đường thương mại – dịch vụ.
số tầng nhà được xây dựng
Số tầng nhà được xây dựng khi lộ giới > 25m là từ 5 tầng – 8 tầng

Trường hợp 4: Tối đa được thiết kế và xây dựng 8 tầng

  • Quy mô tối đa 8 tầng.
  • Chiều cao tối đa tầng 1 đến sàn tầng 2 là: 7.0m có nghĩa là quý vị có thể làm tầng lửng.
  • Chiều cao công trình cao tối đa là 31.8m
  • Khi có cả 3 yếu tố tăng tầng cao sau đây:
    • Thuộc khu vực quận trung tâm Thành Phố hoặc trung tâm cấp quận.
    • Khu vực công trình nằm trên lô đất lớn.
    • Nằm trên trục đường thương mại – dịch vụ.
số tầng nhà được xây dựng
Điều kiện cần và điều kiện đủ để có số tầng tối đa khi lộ giới lớn hơn 25m

Trên đây là bài viết về số tầng nhà dân dụng được phép xây dựng là bao nhiêu tầng, An Bảo Khang đã cố gắng lập bảng và chia thành các trường để quý vị có thể dễ hình dung và dễ hiểu hơn.

Ngoài ra, nếu quý vị có nhu cầu xây dựng những công trình có quy mô lớn hơn 8 tầng, quý vị hãy tham khảo thêm tại luật xây dựng đối với nhà cao tầng nhé.

Qua bài viết này An Bảo Khang hi vọng quý vị sẽ hơn về quy định của pháp luật về số tầng nhà được xây dựng tại TP HCM, nếu quý vị nào có thắc hãy liên hệ với chúng tôi qua hotline: 0909 081 389 để được nhân viên tư vấn. Xin cảm ơn.

Thông tin liên hệ với chúng tôi
Thông tin liên hệ với chúng tôi

Mời quý vị xem thêm: xây nhà trọn gói | sửa chữa nhàbáo giá hoàn thiện nhàbáo giá xây nhà trọn gói 2021 tphcmgiá xây dựng phần thô

Từ khóa: quy định xây nhà trong hẻm | quy định số tầng xây nhà | nhà trong hẻm được xây mấy tầng | điều kiện xây nhà 7 tầng | điều kiện xây nhà 5 tầng | quy định chiều cao xây dựng nhà ở tp hcm | nhà được xây dựng mấy tầng

Để lại một bình luận

Email của bạn sẽ không được hiển thị công khai. Các trường bắt buộc được đánh dấu *

    Chúng tôi rất vui được kết nối với bạn! *

      ABK đồng hành tận tâm cùng gia chủ! *

      0909 08 1389
      tinh phi tel tel