Đây là mẫu thiết kế biệt thự trệt 10x16m, với thiết kế trang nhã khi sử dụng những tông màu dịu nhẹ, với khoảng không gian vườn xanh mát tạo nên không gian sống bình yên và thanh tĩnh.
Thiết kế biệt thự sân vườn đang rất được ưa chuộng hiện nay, vì thế cho nên kiến trúc sư đã ứng dụng thiết kế này vào thiết kế biệt thự trệt. Căn biệt thự nổi lên giữa nền không gian xanh mướt của cây cỏ, khiến ai cũng không thể rời mắt.
Vì là kiểu biệt thự trệt cho nên toàn bộ không gian sống của gia đình sẽ được bố trí ngay ở tầng trệt. Điều này không chỉ tạo nên sự thống nhất trong thiết kế nội thất của căn nhà mà góp phần tăng thêm sự gắn kết giữa các thành viên trong gia đình.
Sau đây là chi tiết mẫu thiết kế biệt thự trệt đẹp có sân vườn xanh mát:
Căn biệt thự với màu sắc dịu nhẹ và thiết kế trang nhã nổi bật lên trên nền xanh của cây cỏ
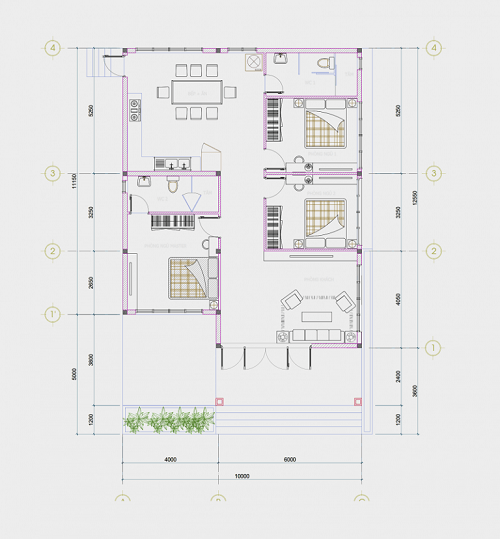
Với thiết kế duy nhất một tầng cho nên toàn bộ không gian phòng, từ phòng khách, phòng bếp, phòng ăn, phòng ngủ và phòng vệ sinh sẽ được bố trí liên kết với nhau trong cùng một không gian
Thiết kế phòng khách sử dụng tông màu sáng và chất liệu gỗ để mang đến nét hiện đại cũng như sự thoáng rộng cho không gian phòng
Phòng bếp và phòng ăn được bố trí liền kề với nhau, tạo nên sự dễ dàng trong di chuyển và nấu nướng. Sử dụng tông màu sáng và tận dụng ánh sáng từ bên ngoài qua ô cửa nhằm mang đến sự rộng rãi cho căn phòng. Đặc biệt sử dụng bàn ghế gỗ và mành cửa bằng tre tạo nên sự gần gũi với thiên nhiên bên ngoài
Phòng ngủ ưu tiên chọn tông màu sáng cùng với các món đồ nội thất đa năng làm bằng gỗ để giúp tiết kiệm diện tích cho phòng
Phòng ngủ lớn duy nhất trong biệt thự được bố trí luôn phòng vệ sinh, mang đến sự tiện lợi cho gia chủ
Đặc biệt, phòng ngủ được bài trí gần cửa sổ để tận dụng nguồn ánh sáng từ bên ngoài mang đến sự thông thoáng, tạo nên cảm giác dễ chịu và thoải mái khi ở trong phòng. Đặc biệt, nếu muốn có thể đứng cạnh cửa sổ phóng tầm mắt ra khoảng sân vườn để có sự thư thái trong tâm hồn
Nhà vệ sinh chung bài trí đẹp mắt và tiện nghi, với việc tận dụng ánh sáng từ bên ngoài tạo nên cảm giác dễ chịu
Với khoảng sân phơi sau nhà có thể bố trí tiểu cảnh xanh mát, vừa có sự thông thoáng khi phơi đồ nhưng đồng thời cũng có thể ngồi nghỉ ngơi thư giãn vào những buổi chiều mát mẻ
Nguồn: An Bảo Khang
Từ khóa: thiết kế nhà đẹp | thiết kế nhà phố | giá xây nhà | thiết kế nhà biệt thự | giá xây dựng phần thô









