Mẫu nhà phố ngang 5m dài 15m là một trong những lựa chọn phổ biến cho những gia đình có nhu cầu xây dựng một căn nhà vừa đủ rộng rãi, tiện nghi và đẹp mắt. Với diện tích này, bạn có thể tận dụng tối đa không gian để tạo ra một ngôi nhà đầy đủ các tiện ích và thoải mái cho cuộc sống hàng ngày. Tuy nhiên, việc thiết kế và xây dựng một căn nhà phố ngang 5m dài 15m cũng đòi hỏi sự cân nhắc và kế hoạch tỉ mỉ để đảm bảo được sự hài hòa và tiện nghi cho không gian sống. Trong bài viết này, chúng ta sẽ cùng tìm hiểu về mẫu nhà phố ngang 5m dài 15m và cách thực hiện nó.






1. Thiết kế mẫu nhà phố ngang 5m dài 15m
1.1 Các yếu tố cần lưu ý khi thiết kế
Khi thiết kế một căn nhà phố ngang 5m dài 15m, bạn cần lưu ý các yếu tố sau đây để đảm bảo được sự hài hòa và tiện nghi cho không gian sống:
- Mục đích sử dụng: Trước khi bắt đầu thiết kế, bạn cần xác định rõ mục đích sử dụng của căn nhà. Đó có thể là một gia đình nhỏ, một cặp vợ chồng trẻ hoặc một gia đình đông thành viên. Từ đó, bạn có thể lựa chọn các phòng và tiện ích phù hợp với nhu cầu của gia đình.
- Phong cách kiến trúc: Mẫu nhà phố ngang 5m dài 15m có thể được thiết kế theo nhiều phong cách khác nhau như hiện đại, cổ điển, tân cổ điển, biệt thự mini… Bạn cần xác định rõ phong cách mong muốn để có thể lựa chọn các vật liệu và nội thất phù hợp.
- Ánh sáng và gió: Vì diện tích nhà hạn chế, việc bố trí ánh sáng và thông gió là rất quan trọng để tạo cảm giác thoáng mát và sáng sủa cho không gian sống. Bạn cần lựa chọn các vị trí phù hợp để đón ánh sáng và gió tự nhiên vào nhà.

1.2 Cách thực hiện mẫu nhà phố ngang 5m dài 15m
Sau khi đã có kế hoạch thiết kế, bạn có thể bắt đầu thực hiện mẫu nhà phố ngang 5m dài 15m theo các bước sau:
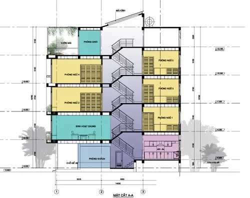
- Bố trí không gian: Đầu tiên, bạn cần xác định các phòng cần thiết trong căn nhà như phòng khách, phòng ngủ, phòng bếp, phòng tắm… Sau đó, bạn có thể bố trí các phòng sao cho hợp lý và tiết kiệm diện tích.
- Lựa chọn vật liệu xây dựng: Với diện tích nhà nhỏ, việc lựa chọn vật liệu xây dựng cũng rất quan trọng để tối ưu hóa không gian và giảm chi phí. Bạn có thể sử dụng các vật liệu như gạch, xi măng, thép để xây dựng nhà.
- Thiết kế nội thất: Nội thất cũng đóng vai trò quan trọng trong việc tạo nên sự thoải mái và tiện nghi cho căn nhà. Bạn có thể lựa chọn các loại đồ nội thất nhỏ gọn và thông minh để tiết kiệm diện tích.
2. Các lời khuyên của bạn Mẫu nhà phố ngang 5m dài 15m
- Tận dụng không gian: Với diện tích nhà hạn chế, việc tận dụng mọi khoảng trống là rất quan trọng. Bạn có thể sử dụng các giá sách treo tường, giá đỡ đồ để tối ưu hóa không gian lưu trữ.
- Sử dụng màu sắc và ánh sáng: Sử dụng các gam màu sáng và tạo điểm nhấn bằng ánh sáng là cách tốt nhất để làm cho không gian nhà trở nên rộng rãi và thoáng mát.
- Lựa chọn nội thất thông minh: Nội thất thông minh là một trong những giải pháp tối ưu cho những căn nhà có diện tích nhỏ. Bạn có thể lựa chọn các loại đồ nội thất có tính năng đa năng và gấp gọn để tiết kiệm diện tích.

3. Cách thực hiện mẫu nhà phố ngang 5m dài 15m
3.1 Các bước xây dựng căn nhà
- Bước 1: Chuẩn bị đất đai và giấy phép xây dựng: Trước khi bắt đầu xây dựng, bạn cần chuẩn bị đất đai và các giấy tờ pháp lý liên quan để đảm bảo việc xây dựng được thực hiện đúng quy định.
- Bước 2: Thiết kế và lập kế hoạch: Sau khi đã có đất và giấy phép, bạn có thể bắt đầu thiết kế và lập kế hoạch chi tiết cho việc xây dựng căn nhà.
- Bước 3: Xây dựng móng và khung nhà: Đây là giai đoạn đầu tiên trong quá trình xây dựng, bao gồm việc xây dựng móng và khung nhà để tạo nên nền móng vững chắc cho căn nhà.
- Bước 4: Hoàn thiện mặt ngoài và lắp đặt hệ thống điện nước: Tiếp theo, bạn cần hoàn thiện mặt ngoài của căn nhà bằng cách sơn và lát nền. Đồng thời, cũng cần lắp đặt hệ thống điện nước để đảm bảo tiện nghi cho cuộc sống.
- Bước 5: Hoàn thiện nội thất và trang trí: Cuối cùng, bạn có thể hoàn thiện nội thất và trang trí căn nhà theo phong cách mong muốn để tạo nên một không gian sống đẹp và thoải mái.
3.2 Chi phí xây dựng
Chi phí xây dựng một căn nhà phố ngang 5m dài 15m sẽ phụ thuộc vào nhiều yếu tố như vật liệu xây dựng, thiết kế, địa điểm xây dựng… Tuy nhiên, theo các chuyên gia, chi phí trung bình để xây dựng một căn nhà phố nhỏ như vậy khoảng 500 triệu đồng.
4. Các câu hỏi thường gặp về mẫu nhà phố ngang 5m dài 15m
4.1 Có nên xây dựng một căn nhà phố ngang 5m dài 15m?
Việc xây dựng một căn nhà phố ngang 5m dài 15m là một lựa chọn phù hợp cho những gia đình có nhu cầu sống trong một không gian nhỏ gọn và tiện nghi. Tuy nhiên, bạn cần lưu ý các yếu tố về mục đích sử dụng, phong cách kiến trúc và chi phí để có thể đưa ra quyết định đúng đắn.
4.2 Có thể thiết kế một căn nhà phố ngang 5m dài 15m theo phong cách nào?
Mẫu nhà phố ngang 5m dài 15m có thể được thiết kế theo nhiều phong cách khác nhau như hiện đại, cổ điển, tân cổ điển, biệt thự mini… Bạn có thể lựa chọn phong cách phù hợp với sở thích và nhu cầu của gia đình.
4.3 Có cần phải có giấy phép xây dựng khi xây dựng một căn nhà phố ngang 5m dài 15m?
Có, việc có giấy phép xây dựng là bắt buộc khi xây dựng bất kỳ công trình nào, bao gồm cả căn nhà phố ngang 5m dài 15m. Việc này giúp đảm bảo việc xây dựng diễn ra đúng quy định và an toàn cho cả gia đình và cộng đồng.
4.4 Có thể sử dụng các vật liệu xây dựng nào cho căn nhà phố ngang 5m dài 15m?
Bạn có thể sử dụng các vật liệu như gạch, xi măng, thép để xây dựng căn nhà phố ngang 5m dài 15m. Tuy nhiên, cần lưu ý lựa chọn các vật liệu phù hợp với phong cách kiến trúc và chi phí của gia đình.
4.5 Có cần thiết phải thuê kiến trúc sư khi thiết kế mẫu nhà phố ngang 5m dài 15m?
Việc thuê kiến trúc sư là tùy thuộc vào khả năng và kinh nghiệm của bạn trong việc thiết kế và xây dựng. Nếu bạn có đủ kỹ năng và hiểu biết về kiến trúc, có thể tự thiết kế và xây dựng căn nhà. Tuy nhiên, nếu không, việc thuê kiến trúc sư sẽ giúp bạn có được một căn nhà hoàn hảo và tiết kiệm thời gian và công sức.
Kết luận
Mẫu nhà phố ngang 5m dài 15m là một lựa chọn tuyệt vời cho những gia đình có nhu cầu sống trong một không gian nhỏ gọn và tiện nghi. Tuy nhiên, việc thiết kế và xây dựng căn nhà này cũng đòi hỏi sự cân nhắc và kế hoạch tỉ mỉ để đảm bảo được sự hài hòa và tiện nghi cho không gian sống. Hy vọng bài viết này đã giúp bạn hiểu rõ hơn về mẫu nhà phố ngang 5m dài 15m và cách thực hiện nó. Chúc bạn thành công trong việc xây dựng một căn nhà hoàn hảo cho gia đình của mình.
