Công ty xây dựng nhà tại quận Tân Phú
Hiện nay nhu cầu về công tác thi công thiết kế, xây dựng nhà ở trên địa bàn Thành phố Hồ Chí Minh đặc biệt khu vực quận Tân Phú ngày càng tăng cao. Nhằm đáp ứng nhu cầu thiết kế xây dựng của mọi người An Bảo Khang công ty xây dựng nhà tại Quận Tân Phú luôn sẵn sàng đồng hành lắng nghe phục vụ vụ quý vị.
Với kinh nghiệm nhiều năm trong việc xây dựng nhà ở, nhà phố, biệt thự, khách sạn… An Bảo Khang đã và đang hợp tác với rất nhiều khách hàng, mang đến những công trình nhà ở chất lượng, giá cả hết sức hợp lí.
Với các kỹ sư có kinh nghiệm lâu năm, tay nghề chuyên môn cao, tận tâm với công việc, luôn đáp ứng và làm hài lòng mọi yêu cầu của khách hàng. Cùng đội ngũ công nhân viên xây dựng lành nghề, siêng năng, tinh thần tự giác trong công việc. Công ty An Bảo Khang đã thi công hàng trăm công trình xây dựng nhà mới trong suốt thời gian qua, được rất nhiều khách hàng đánh giá là một trong những công ty xây dựng nhà tốt, chuyên nghiệp, uy tín nhất hiện nay tại Quận Tân Phú.

Công trình tiêu biểu của công ty xây dựng nhà tại quận Tân Phú
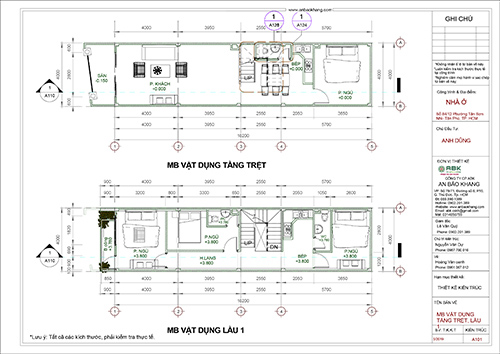
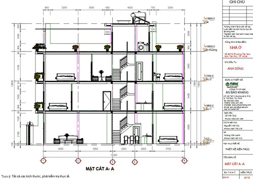
- Chủ đầu tư : Anh Nguyễn Ngọc Dũng
- Địa chỉ : 84/12 Đường Tân Sơn Nhì, P.Tân Sơn Nhì , Quận Tân Phú ,TP.HCM
- Hạng mục xây dựng: Nhà ở tư nhân với 1 trệt, 2 lầu, 1 sân thượng
- Diện tích xây dựng : 4x18m
Các hạng mục xây dựng nhà Anh Dũng Quận Tân Phú
Về phần thiết kế
Theo ý muốn của anh Dũng với thiết kế nhà gồm 1 trệt, 2 lầu và 1 sân thượng. Ở mỗi tầng lầu được xây thêm 2 phòng ngủ và 1 phòng vệ sinh giúp tăng tiện ích sử dụng cũng như đáp ứng được nhu cầu sinh hoạt của mọi thành viên trong gia đình anh. Không gian ngôi nhà được thiết kế đơn giản nhưng cũng không kém phần hiện đại, tận dụng được tối đa diện tích sử dụng của ngôi nhà. Sân thượng được thiết kế rộng rãi và thoáng mát một nơi mang lại những phút giây thư giản sau những giờ làm việc căng thẳng mệt mỏi.



Mời Quý vị tham khảo >>> Đơn giá thiết kế nhà
Mời Quý vị tham khảo >>> Những lưu ý khi thiết kế nhà
Một số hình ảnh xây dựng nhà quận Tân Phú trong quá trình thi công:






Mời Quý vị tham khảo thêm >>> Cách tính diện tích xây dựng
Mời Quý vị tham khảo thêm >>> Hợp đồng xây dựng
Mời Quý vị tham khảo thêm >>> Đơn giá thi công xây dựng nhà phần thô
Hình ảnh hoàn thiện nội thất một số công trình xây dựng nhà tại quận Tân Phú


Công ty xây dựng nhà tại Quận Tân Phú An Bảo Khang xin cam kết :
- Giá cả hợp lý, không chi phí phát sinh.
- Thi công và hoàn thiện dự án nhanh chóng, đúng tiến độ.
- Sử dụng vật liệu chất lượng đúng yêu cầu.
- Thực hiện đúng hợp đồng xây dựng, đảm bảo lợi ích cho chủ đầu tư.
- Đảm bảo an toàn khi thi công và chất lượng công trình
- Không bán thầu.
- Bảo hành miễn phí 5 năm đối với phần thô và 2 năm đối với phần hoàn thiện.
Công ty xây dựng nhà tại Quận Tân Phú uy tín chuyên nghiệp An Bảo Khang xin cám ơn tất cả Quý vị đã luôn quan tâm và ủng hộ An Bảo Khang chúng tôi. Để được giải đáp những thắc mắc trong việc thiết kế, xây dựng, sửa chữa nhà quý vị hãy liên hệ Hotline 090 220 1389. Chúc tất cả Quý vị và các bạn vui vẻ, hạnh phúc, lạc quan và thành công trong cuộc sống.
Từ khóa: đơn giá xây dựng phần thô | thiết kế biệt thự đẹp | kiến trúc nhà phố | đơn giá xây nhà