AN BẢO KHANG GROUP

Chi phí xây dựng nhà ở 4 tầng 4m x17m tại Gò Vấp

Chi phí xây dựng nhà ở 4 tầng 4m x17m tại Gò Vấp

Thời gian qua công ty An Bảo Khang chúng tôi đã thiết kế nhiều nhà phố đẹp, xây dựng nhiều căn nhà đẹp trên địa bàn Thành Phố Hồ Chí Minh. Tất cả những gia chủ đã kí hợp đồng và làm việc với chúng tôi điều rất hài lòng với cách làm việc và vừa ý với cách tính chi phí xây dựng nhà của công ty. Rất nhiều gia chủ đánh giá rất cao về chất lượng dịch vụ, cũng như tác phong làm việc chuyên nghiệp, sự nhiệt tình tận tâm với nghề của cán bộ các anh em kỹ sư cùng đội ngũ công nhân tâm huyết tay nghề giỏi nhiều năm với nghề xây dựng.

Hiện nay cách tính chi phí xây dựng nhà /m2 xây dựng đang được rất nhiều nhà thầu xây dựng áp dụng tại Tp. HCM.

1. Chúng tôi xin đưa ra cách tính chi phí xây dựng nhà phổ biến của các nhà thầu dưới đây, mời quý vị cùng tham khảo trước.

  • Móng băng từ 50%-70% diện tích.
  • Móng cọc bê tông cốt thép 30%-50% (chưa bao gồm chi phí cọc và nhân công ép cọc).
  • Diện tích xây dựng các tầng, kể cả chuồng cu cầu thang tính 100% diện tích.
  • Sân thượng mái bê tông cốt thép từ 30%-50% diện tích.
  • Sân thượng có mái trang trí từ 50%-70% diện tích.
  • Tầng hầm từ 140%-200% diện tích.

2. Mời quý vị tham khảo cách tính chi phí xây dựng nhà phố 4 tầng tại quận Gò Vấp của một công trình công ty đang trong giai đoạn thi công

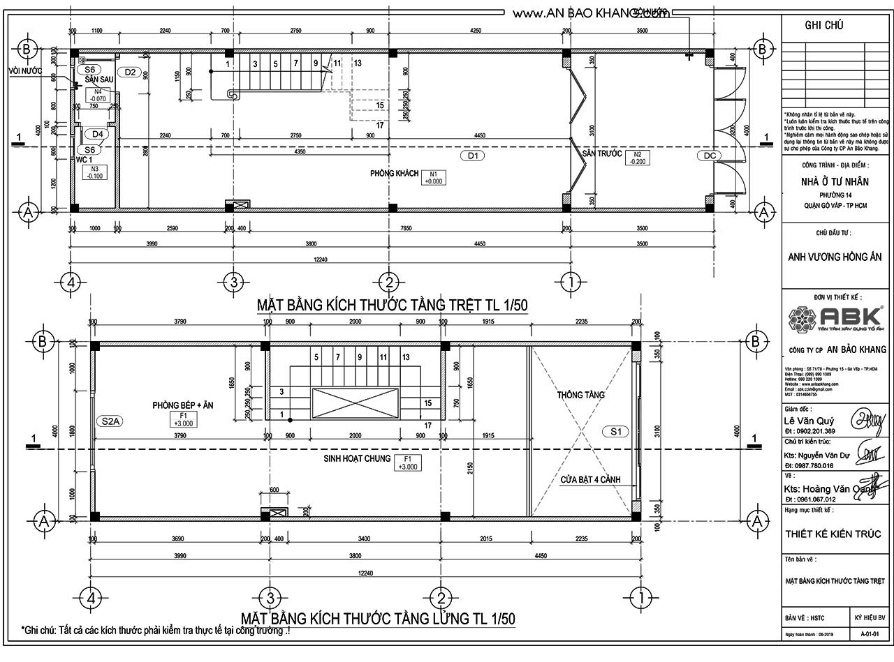
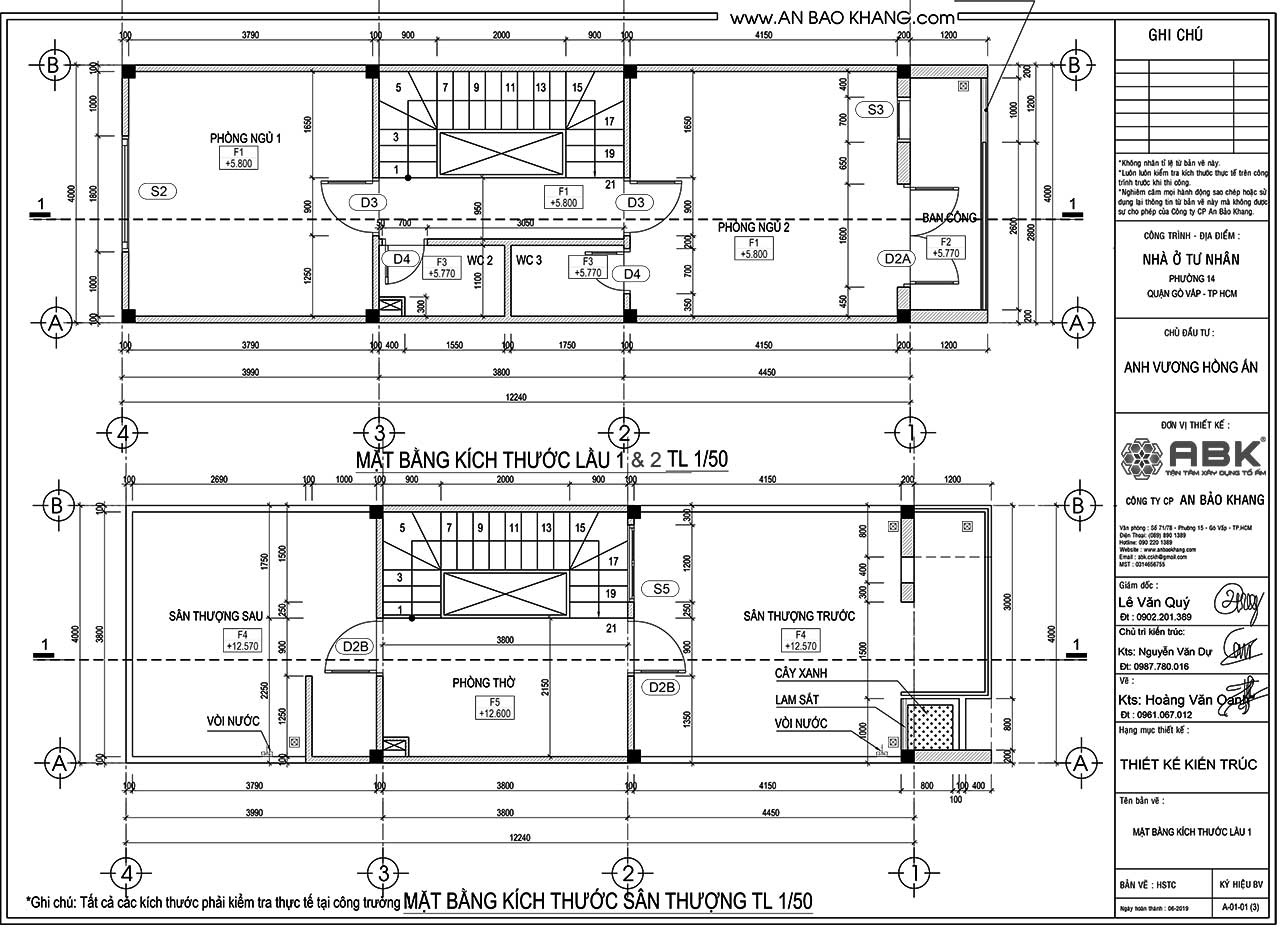
Với quy mô xây dựng nhà phố 4 tầng tại Gò vấp diện tích là: 16,8m x 4m = 67,2m2

Bao gồm: 1 Trệt, 1 Lững, 2 Lầu, 1 tum, mái bê tông cốt thép.

3. Chi phí xây dựng nhà phần thô 4x17m tại Gò Vấp.

Hiện nay đơn giá xây dựng nhà phần thô tại Quận Gò Vấp của các nhà thầu xây dựng nhà phố tại Tp. HCM có giá gần như bằng nhau. Đối với công ty chúng tôi An Bảo Khang đơn giá xây dựng phần thô từ: 3.000.000Đ/m2 – 3.300.000Đ/m2.

Chi phí xây dựng nhà

Chi phí xây dựng nhà

Sau đây, chúng tôi sẽ tính sơ bộ chi phí xây dựng phần thô nhà 4 tầng tại Gò Vấp diện tích 4x17m với giá: 3.000.000đ/m2

  1. Móng cọc bao gồm móng sân trước: 68m2 x 50% = 34m2 x 3.000.000đ = 102.000.000đ.
  2. Tầng trệt : 49,2 m2 x 100% = 49,2m2 x 3.000.000đ   = 147.600.000đ
  3. Tầng lửng: 39,5 m2 x 100% =39,5m2 x 3.000.000đ    = 118.500.000đ
  4. Tầng 1,2 : 108  m2 x 100% = 108m2 x 3.000.000đ    = 324.000.000đ
  5. Sân trước : 18    m2 x 40%   = 7,2m2 x 3.000.000đ     = 21.600.000đ.
  6. Vị trí không lửng: 9,7 m2 x 60% = 5,8m2 x 3.000.000đ = 17.400.000đ.
  7. Tum che thang, phòng thờ và phòng giặc: 26,8m2x100% = 26,8m2 x 3.000.000đ= 80.400.000đ.
  8. Sân thượng trước có sàn phẹt theo thiết kế: 19,6m2 x 70% = 13,7m2 x 3.000.000= 41.100.000đ.
  9. Sân thượng sau không sàn phẹt: 10,4m2 x 50% = 5,2m2 x 3.000.000đ = 15.600.000đ.
  10. Mái BTCT che tum thang, phòng thờ và phòng giặt: 27,2m2 x 40% =10,9m2x 3.000.000đ = 32.700.000đ.

Tổng chi phí xây dựng phần thô nhà phố 4 tầng là: 900.000.000đ.

4. Chi phí xây dựng nhà trọn gói 4 tầng tại quận Gò Vấp.

Giá xây dựng nhà phần trọn gói hiện nay của các nhà thầu thi công nhà phố rất đa dạng, có nhiều cấp độ chất liệu, vật liệu hoàn thiện cao cấp khác nhau vì thế đơn giá xây dựng nhà trọn gói của các công ty xây dựng cũng khác nhau đôi chút. Quý vị hãy truy cập website: anbaokhang.com, để xem đơn giá xây dựng nhà trọn gói chi tiết cụ thể nhất.

Đối với vi dụ dưới đây chúng tôi sẽ chọn đơn giá xây nhà trọn gói (gói trung bình khá) để tính toán chi phí xây dựng cho ngôi nhà 4 tầng này.

 

Chi phí xây dựng nhà

Chi phí xây dựng nhà

 

Đơn giá xây nhà trọn gói (gói trung bình khá) là: 5.000.000đ/m2.

  1. Móng cọc bao gồm móng sân trước: 68m2 x 50% = 34m2 x 3.000.000đ = 102.000.000đ.
  2. Tầng trệt : 49,2 m2 x 100% = 49,2m2 x 5.000.000đ  = 246.000.000đ
  3. Tầng lửng: 39,5 m2 x 100% =39,
  4. 5m2 x 5.000.000đ   = 197.500.000đ
  5. Tầng lầu 1,2 : 108 m2 x 100% = 108m2 x 5.000.000đ    = 540.000.000đ
  6. Sân trước : 18    m2 x 40%   = 7,2m2 x 5.000.000đ    = 36.000.000đ.
  7. Vị trí không lửng: 9,7 m2 x 60% = 5,8m2 x 5.000.000đ = 29.000.000đ.
  8. Tum che thang, phòng thờ và phòng giặc : 26,8m2x100% = 26,8m2 x 5.000.000đ= 134.000.000đ.
  9. Sân thượng trước có sàn phẹt theo thiết kế: 19,6m2 x 70% = 13,7m2 x 5.000.000= 68.500.000đ.
  10. Mái BTCT che tum thang, phòng thờ và phòng giặt: 27,2m2 x 40% = 10,9m2 x 5.000.000đ = 54.500.000đ.
  11. Sân thượng sau không sàn phẹt 10,4m2 x 50% = 5,2m2 x 5.000.000đ= 26.000.000đ.

Tổng chi phí xây dựng nhà phần trọn gói nhà phố 4 tầng là: 1,433,000,000đ.

Chi phí xây dựng nhà phần thô hay chi phí xây nhà trọn gói nhà phố phụ thuộc rất nhiều vào các yếu tố sau đây:

  • Đường vận chuyển vật tư vào nhà Quý vị nếu đường >5 mét thì giá xây dựng nhà sẽ thấp hơn những công trình có đường vào nhà nhỏ hơn 5 mét (đường vào nhà xe 6m3 ra vào được).
  • Phụ thuộc vào tổng diện tích m2 sàn xây dựng, Nhà phố có tổng diện tích <250m2 giá xây dựng sẽ cao hơn nhà có tổng diện tích >250m2.
  • Nhà phố có nhiều nhà vệ sinh cũng là 1 yếu tố quan trọng làm chi phí xây dựng nhà phố của Quý vị sẽ cao hơn so với các nhà khác có cùng diện tích và số tầng như ngôi nhà của Quý vị (phù hợp nhất là 1 tầng có diện tích 60m2 là 02 nhà vệ sinh, diện tích sàn càng nhỏ nên ít nhà vệ sinh)
  • Yếu tố cuối cùng khiến giá xây nhà của Quý vị tăng là do lựa chọn loại vật liệu cao cấp so với những công trình có cùng quy mô và diện tích. Quý vị nên chọn loại vật liệu hoặc thiết bị vật dụng phù hợp với kiến trúc, phong cách, gói thầu xây dựng mà Quý vị chọn.

5. Cách tính chi phí xây dựng nhà

Thực ra đơn giá xây dựng nhà ở của các nhà thầu thi công nhà phố không chênh lệch là bao nhiêu, cho nên quý vị cũng không cần lo lắng quá mà hãy chọn một nhà thầu xây dựng uy tín, tận tâm giá cạnh tranh là được rồi.

6. Một số hình ảnh nội thất phòng khách, phòng ngủ và bếp của ngôi nhà phố 4 tầng 4mx17m

Chi phí xây dựng nhà
Nội thất phòng khách ngôi nhà 4 tầng 4mx17m
Nội thất phòng ngủ chính thiết kế bố trí vật dụng phù hợp.
Nội thất phòng ngủ chính thiết kế bố trí vật dụng phù hợp.
Chi phí xây dựng nhà
Phòng ngủ bé gái được thiết kế gam màu mà bé gái thích, tạo nên sự sinh động cho căn phòng.
Nội thất khu vực bếp nhà ở 4 tầng 4m x17m
Nội thất khu vực bếp gồm đầy đủ các thiết bị nội trợ, ga màu chủ đạo là màu kem tạo nên sự sạch sẽ và ấm cúng.
Nội thất khu vực phòng sinh hoạt và phòng đọc sách của ngôi nhà 4 tầng 4x17m
Nội thất khu vực phòng sinh hoạt và phòng đọc sách của ngôi nhà 4 tầng 4x17m
Chi phí xây dựng nhà
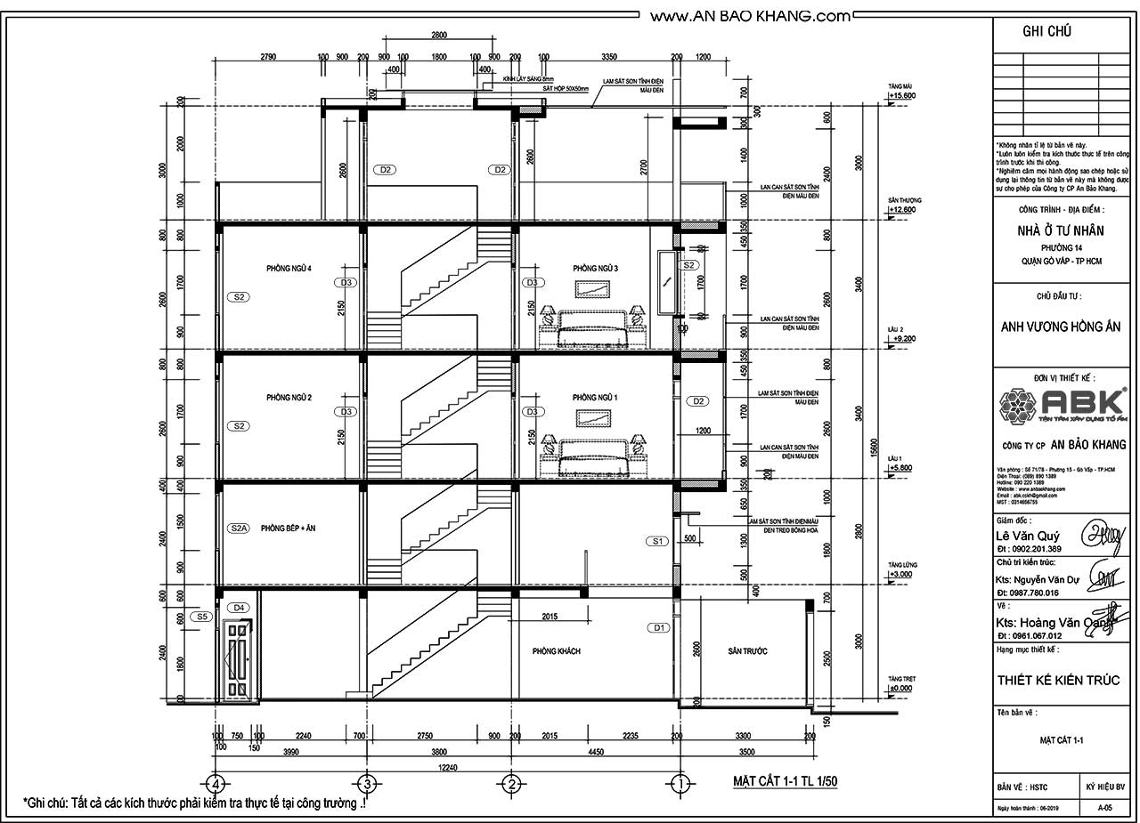
Cầu thang là phương tiện đi lại từ tầng này xuống lên tầng kia, được thiết kế bằng tay vị gỗ và kính cường lực vừa sang trọng vừa sáng sủa giúp người đi lại quan sát rõ ràng.

Quý vị là chủ đầu tư, quý vị là người chấm thầu, quý vị đưa ra yêu cầu quy mô công trình, yêu cầu kỹ thuật thi công, yêu cầu chủng loại vật tư, quý vị hãy lựa chọn một nhà thầu có uy tín tận tâm, nhà thầu có giá cả hợp lí. Nếu trong tương lai quý vị có nhu cầu xây nhà và muốn có một bảng dự toán chi phí xây dựng phù hợp với gia đình mình thì Quý vị vui lòng liên hệ với chúng tôi qua website: anbaokhang.com hoặc Quý vị liên hệ ngay sđt: 0902 20 1389 chúng tôi hy vọng sẽ hợp tác với Quý vị, cùng quý vị xây dựng tổ ấm cho gia đình Quý vị.

Thông tin của chúng tôi:

Chi phí xây dựng nhà
Chi phí xây dựng nhà

Mời Quý vị xem thêm : xây dựng nhà phốsửa chữa nhàsửa nhà 2022hợp đồng thi côngdự toán xây dựng nhà ởxây nhà cấp 4 bao nhiêu tiềnsửa nhà nâng tầng

Để lại một bình luận

Email của bạn sẽ không được hiển thị công khai. Các trường bắt buộc được đánh dấu *

    Chúng tôi rất vui được kết nối với bạn! *

      ABK đồng hành tận tâm cùng gia chủ! *

      0909 08 1389
      tinh phi tel tel