Nhà 3 tầng với diện tích 100m2 được rất nhiều gia chủ xây dựng, với quy mô 3 tầng giúp đảm bảo được công năng sử dụng, đảm bảo được sự thoải mái cho cuộc sống sinh hoạt hằng ngày là nơi sau 1 ngày làm việc mệt mỏi gia chủ về có thể thư giản với không gian 3 tầng thoáng mát do đó khi sở hữu diện tích đất 100m2 rất nhiều chủ đầu tư lựa chọn xây nhà 3 tầng, tuy nhiên chi phí thiết kế xây nhà 3 tầng 100m2 hết bao nhiêu tiền ? là sự quan tâm hàng đầu của các chủ đầu tư. An Bảo Khang xin đưa ra bảng giá chi tiết kèm cách tính chi phí khi xây dựng nhà 3 tầng với diện tích 100m2 để các chủ đầu tư có thể dự toán chi phí xây nhà phù hơp.
Giới thiệu sơ bộ về công trình nhà 3 tầng 100m2
- Chủ đầu tư: Anh Hoàng
- Địa chỉ: Phường 10, Quận Tân Bình, TP.HCM
- Diện tích đất: 6m x 20m
- Diện tích xây dựng: 5m x 16.6m
- Diện tích tầng trệt 94m2
- Diện tích lầu 1 : 100m2
- Diện tích lầu 2: 64m2
- Diện tích mái BTCT 70m2
- Diện tích sân thượng : 36 m2
- Diện tích sân trước + sân sau nhà: 26m2
1. Hình ảnh thiết kế nhà 3 tầng 100m2

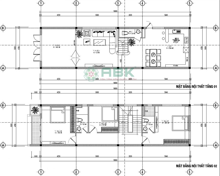
2. Hình ảnh bố trí mặt bằng nội thất nhà 3 tầng 100m2
- Bố trí mặt bằng nội thất tầng 1, tầng 2 nhà 3 tầng 100m2

- Bố trí mặt bằng nội thất tầng 3 nhà 3 tầng 100m2

Bảng giá xây dựng và vật tư cho nhà 3 tầng 100m2
ĐƠN GIÁ XÂY NHÀ 3 TẦNG 100m2 TẠI TP.HCM |
|||
| ĐƠN GIÁ XÂY DỰNG | ĐƠN GIÁ XÂY DỰNG NHÀ PHẦN THÔ VÀ NHÂN CÔNG HOÀN THIỆN 3.100.000đ |
||
| ĐƠN GIÁ XÂY DỰNG TRỌN GÓI 4.500.000đ – 6.500.000đ/m2 |
|||
| STT | VẬT LIỆU THÔ | Gói trung bình khá | Gói Khá + |
| 1 | Thép | Việt Nhật | Việt Nhật |
| 2 | Xi măng đổ bê tông | INSEE (Holcim) đa dụng | INSEE (Holcim) đa dụng |
| 3 | Xi măng xây tô tường | Hà tiên đa dụng | Hà tiên đa dụng |
| 4 | Bê tông tươi | Bê tông thương phẩm M250 | Bê tông thương phẩm M250 |
| 5 | Cát bê tông | Cát hạt lớn | Cát hạt lớn |
| 6 | Cát xây tường | Cát hạt lớn | Cát hạt lớn |
| 7 | Cát tô trát tường | Cát vàng hạt trung | Cát vàng hạt trung |
| 8 | Đá 1×2, 4×6 | Đá xanh Đồng nai | Đá xanh Đồng nai |
| 9 | Gạch đinh 8x8x18cm | Tuynel Bình Dương | Tuynel Bình Dương |
| 10 | Gạch đinh 4x8x18cm | Tuynel Bình Dương | Tuynel Bình Dương |
| 11 | Dây cáp điện chiếu sáng | Cáp Cadavi | Cáp Cadavi |
| 12 | Dây cáp TV | Cáp Sino | Cáp Sino (Panasonic) |
| 13 | Dây cáp mạng | Cáp Sino | Cáp Sino (Panasonic) |
| 14 | Đế âm tường, ống luồn dây điện | Sino | Nano (Panasonic) |
| 15 | Đường ống nước nóng âm tường | Vesbo | Vesbo |
| 16 | Đường ống nước cắp, nước thoát âm tường | Binh Minh | Binh Minh |
| 17 | Hóa chất chống thấm ban công, sân thượng, Wc | Kova – CT-11A hoặc SiKa | Kova – CT-11A hoặc SiKa |
| VẬT LIỆU HOÀN THIỆN – AN BẢO KHANG | |||
| STT | SƠN NƯỚC – SƠN DẦU | ||
| 1 | Sơn nước nội thất | Dulux | Jotun |
| 2 | Sơn nước ngoại thất | Dulux | Jotun |
| 3 | Sơn lót mặt tiền | Dulux | Jotun |
| 4 | Matit | Jotun | Jotun |
| 5 | Sơn dầu, sơn chống xỉ | Jotun | Jotun |
| STT | THIẾT BỊ ĐIỆN | ||
| 1 | Thiết bị công tắc, ổ cắm điện | Sino | Panasonic |
| 2 | Bóng đèn chiếu sáng phòng khách, phòng ngủ, phòng bếp | Đèn Philips: 850.000đ/phòng | Đèn Philips: 1.300.000đ/phòng |
| 3 | Bóng đèn chiếu sáng nhà vệ sinh | Đèn Philips: 350.000đ/phòng | Đèn Philips: 500.000đ/phòng |
| 4 | Đèn trang trí phòng khách | Đơn giá 650.000đ/phòng | Đơn giá 1.250.000đ/phòng |
| 5 | Đèn ban công | Đơn giá 380.000đ/phòng | Đơn giá 850.000đ/phòng |
| 6 | Đèn cầu thang | Đơn giá 380.000đ/phòng | Đơn giá 550.000đ/phòng |
| 7 | Đèn ngủ | Đơn giá 480.000đ/phòng | Đơn giá 1.000.000đ/phòng |
| STT | THIẾT BỊ VỆ SINH | ||
| 1 | Bồn cầu vệ sinh | INAX-TOTO đơn giá 3.200.000đ/bộ | INAX-TOTO đơn giá 4.500.000đ/bộ |
| 2 | Lavabo rửa mặt | INAX-TOTO đơn giá 900.000đ/bộ | INAX-TOTO đơn giá 2.200.000đ/bộ |
| 3 | Phụ kiện lavabo | Giá 1.100.000đ/bộ | Giá 2.500.000đ/bộ |
| 4 | Vòi rửa lavabo | INAX: Đơn giá 1.350.000đ/bộ | INAX: Đơn giá 2.200.000đ/bộ |
| 5 | Vòi sen tắm | INAX: Đơn giá 1.350.000đ/bộ | INAX: Đơn giá 2.650.000đ/bộ |
| 6 | Vòi xịt vệ sinh | INAX đơn giá 250.000đ/bộ | INAX đơn giá 350.000đ/bộ |
| 7 | Gương soi nhà vệ sinh | Đơn giá 290.000đ/bộ | Đơn giá 350.000đ/bộ |
| 8 | Phụ kiện 7 món vệ sinh | INOX đơn giá 1.200.000đ | INOX đơn giá 2.000.000đ |
| 9 | Máy bơm nước | Panasonic: Đơn giá 1.250.000đ/cái | Panasonic: Đơn giá 1.250.000đ/cái |
| 10 | Bồn nước | Đại Thành, 1000L | Đại Thành, 1000L |
| STT | BẾP- AN BẢO KHANG | ||
| 1 | Tủ bếp gôc trên | HDF | Căm xe |
| 2 | Tủ bếp gôc dưới | Cánh tủ HDF | Cánh tủ căm xe |
| 3 | Mặt đá bàn bếp | Đá hoa cương Đen Huế | Đá hoa cương. Kim Sa hoặc tương đương |
| 4 | Chậu rửa trên bàn bếp | INAX đơn giá 1.450.000đ/bộ | INAX đơn giá 3.800.000đ/bộ |
| 5 | Vòi rửa chén nóng lanh | INAX: Đơn giá 1.200.000đ/bộ | INAX- TOTO: Đơn giá 2.800.000đ/bộ |
| STT | CẦU THANG | ||
| 1 | Đá cầu thang | Đá hoa cương đen Huế | Giá 1.400.000đ/m2 |
| 2 | Tay vịn cầu thang | Căm xe 8x8cm: Đơn giá 400.000đ/md | 8x8cm 400.000đ/md |
| 3 | Trụ đề ba cầu thang 1 cái | Trụ gỗ sồi: Giá 1.800.000đ/1 cái | Trụ gỗ sồi: Giá 2.800.000đ/1 cái |
| 4 | Lan can cầu thang | Kính cường lực: trụ INOX | Kính cường lực: trụ INOX |
| 5 | Ô lấy sáng cầu thang và ô giếng trời | Khung bảo vệ sắt hộp 4cmx2cm A.13cmx13cm.(kính cường lực 8mm) | Khung bảo vệ sắt hộp 4cmx2cm A.13cmx13cm.(kính cường lực 8mm) |
| STT | GẠCH ỐP LÁT | ||
| 1 | Gạch lát nền nhà | 220.000đ/m2 | 300.000đ/m2 |
| 2 | Gạch lát nền phòng Wc và ban công | 135.000đ/m2 | 200.000đ/m2 |
| 3 | Gạch ốp tường Wc | 190.000đ/m2 | 220.000đ/m2 |
| 4 | Gạch len tường | Gạch cắt cùng loại gạch nền cao 12à14cm | Gạch cắt cùng loại gạch nền cao 12à14cm |
| STT | CỬA – AN BẢO KHANG | ||
| 1 | Cửa cổng | Sắt hộp khung bao: Giá 1.400.000đ/m2 | Sắt hộp khung bao: Giá 1.700.000đ/m2 |
| 2 | Cửa chính tầng trệt 1 bộ | Cửa nhựa lõi thép, kính cường lực 8mm | Cửa nhựa nhôm Xingfa kính cường lực 8mm |
| 3 | Cửa đi ban công | Cửa nhựa lõi thép, kính cường lực 8mm | Cửa nhựa nhôm Xingfa kính cường lực 8mm |
| 4 | Cửa sổ | Cửa nhựa lõi thép, kính cường lực 8mm | Cửa nhựa nhôm Xingfa kính cường lực 8mm |
| 5 | Khung bảo vệ cửa sổ | Sắt hộp 1.5cm x 2cm chia ô 12cm x 12cm | Sắt hộp 2cm x 2cm chia ô 12cm x 12cm |
| 6 | Cửa phòng ngủ | HDF | Căm xe |
| 7 | Cửa WC | Cửa nhựa lõi thép, kính cường lực 8mm | Căm xe |
| 8 | Ổ khóa cửa phòng khóa núm xoay | Đơn giá 270.000đ/bộ | Đơn giá 320.000đ/bộ |
| 9 | Ổ khóa cửa chính và cửa ban công khóa gạt | Đơn giá 520.000đ/bộ | Đơn giá 1.150.000đ/bộ |
| TRẦN THẠCH | |||
| CAO | |||
| 1 | Trần thạch cao trang trí | Khung Vĩnh Tường | Khung Vĩnh Tường |
Mời quý vị bấm vào đây để tham khảo >>> đơn giá thiết kế nhà
Mời quý vị bấm vào đây để tham khảo >>> đơn giá xây nhà trọn gói năm 2021
Mời quý vị bấm vào đây để tham khảo >>> đơn giá xây nhà phần thô năm 2021
Cách tính chi phí khi thiết kế xây nhà 3 tầng 100m2
1. Cách tính diện tích xây dưng nhà 3 tầng có diện tích 100m2
- Diện tích tầng trệt 94m2
- Diện tích lầu 1 : 100m2
- Diện tích lầu 2: 64m2
- Diện tích mái BTCT 70m2 x 40% = 28m2
- Diện tích sân thượng : 36 m2 x 60% = 21.6m2 ( sân thượng có lam trang trí ).
- Diện tích sân trước + sân sau nhà: 26m2 x 50% = 13m2.
- Diện tích móng 94m2 x 45% = 42.3m2
Tổng diện tích xây dựng là: 362.9m2
2. Cách tính chi phí thiết kế xây dựng nhà 3 tầng có diện tích 100m2
Anh Hoàng xây dựng nhà 3 tầng với diện tích 100m2 anh sử dụng dịch vụ xây nhà trọn gói của An Bảo Khang, dươi đây An Bảo Khang đưa ra 2 cách tính vừa chi phí xây dựng phần thô và chi phí xây dựng trọn gói để quý vị dễ hình dùng và có sự cân đối tài chính cũng như lựa chọn gói xây nhà phù hợp cho mình.
– Cách tinh chi phí xây dựng phần thô nhà 3 tầng diện tích 100m2
Với nhà 3 tầng diện tích 100m2 An Bảo Khang áp dụng đơn giá 3.100.000đ/m2. Tổng chi phí khi thiết kế xây dựng phần thô của quý vị là:
362.9m2 x 3.100.000đ = 1.124.900.000đ
– Cách tinh chi phí xây dựng trọn gói nhà 3 tầng diện tích 100m2
Với nhà 3 tầng diện tích 100m2 An Bảo Khang áp dụng đơn giá xây nhà trọn gói là 4.500.000đ/m2. Tổng chi phí khi thiết kế xây dựng nhà trọn gói của quý vị là:
362.9m2 x 4.500.000đ = 1.633.000.000đ
Thông tin liên hệ công ty xây dựng nhà 3 tầng 100m2
Cảm ơn quý vị đã ghé thăm trang web của An Bảo Khang, đơn giá trên chỉ mang tính chất tham khảo, chi phí xây dựng nhà còn phụ thuộc nhiều vào yếu tố điều kiện thi công, quy mô công trình, yêu cầu vật liệu hoàn thiện. Quý vị hãy liên hệ trực tiếp với chúng tôi qua hotline: 090 220 1389, chúng tôi sẽ tư vấn về đơn giá xây nhà tốt nhất đối với quý vị.

Mời quý vị bấm vào đây để tham khảo >>> đơn giá hoàn thiện nhà đã xây thô
Mời quý vị bấm vào đây để tham khảo >>> đơn giá sửa nhà trọn gói
Từ khóa: xây nhà trọn gói | đơn giá xây nhà phần thô | đơn giá sửa nhà | sửa nhà nâng tầng | giá sửa nhà năm 2021| giá xây nhà 3 tầng 100m2 hết bao nhiêu tiền | chi phí xây dựng nhà 3 tầng 100m2
Nguồn: An Bảo Khang
