Là mẫu thiết kế nhà phố có chiều rộng 7m với những đường nét hiện đại, cùng với điểm nhấn nổi bật nhờ vào các mảng màu sáng của kính và lan can kính.

Để đảm bảo không gian sinh hoạt chung và không gian sinh hoạt riêng cho thành viên gia đình, kiến trúc sư xây dựng mẫu nhà phố 7m này thành 3 tầng.

Tầng 1 với diện tích bề rộng rộng rãi, ngoài khoảng sân phía trước sẽ có gara đặt ở một bên không gian phòng khách. Tuy nhiên được thiết kế cách biệt với nhau để tránh mùi xăng xe.

Phòng khách, phòng bếp, phòng ăn và giếng trời ngay không gian tầng 1. 4 phòng ngủ cùng với không gian sinh hoạt chung sẽ được bố trí ngay không gian tầng 2 và tầng 3.

Sau đây là chi tiết mẫu thiết kế nhà phố có chiều rộng 7m, 3 tầng:

Thiết kế nhà phố có chiều rộng 7m
Thiết kế nhà phố có chiều rộng 7m – Ngôi nhà phố toát lên vẻ hiện đại với những điểm nhấn tư màu kính và lan can bằng kính
Thiết kế nhà phố có chiều rộng 7m
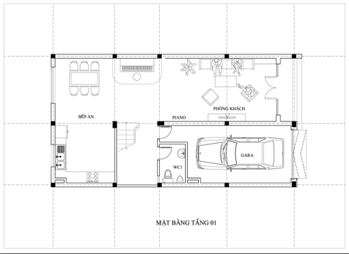
Mặt bằng tầng 1 rộng thiết kế gara để xe riêng. Bên cạnh đó không gian tầng 1 còn có phòng khách, phòng bếp, phòng ăn, phòng vệ sinh và giếng trời
Thiết kế nhà phố có chiều rộng 7m
Phòng khách bố trí hài hòa về mặt màu sắc cùng với món đồ nội thất có thiết kế đơn giản. Đặc biệt với khoảng giếng trời từ bên ngoài mang đến cảm giác xanh mát và thoáng đãng cho không gian phòng
Thiết kế nhà phố có chiều rộng 7m
Phòng bếp toát lên vẻ sang trọng và hiện đại khi sử dụng tông màu trắng chủ đạo từ tủ bếp cho đến bàn bếp. Bên cạnh đó còn tạo điểm nhấn đặc biệt với những ngọn đèn độc đáo treo ở trên
Thiết kế nhà phố có chiều rộng 7m
Bàn ăn sử dụng chất liệu gỗ nổi bật cùng với tông màu sáng, là tông màu chủ đạo trong thiết kế nội thất của ngôi nhà
Thiết kế nhà phố có chiều rộng 7m
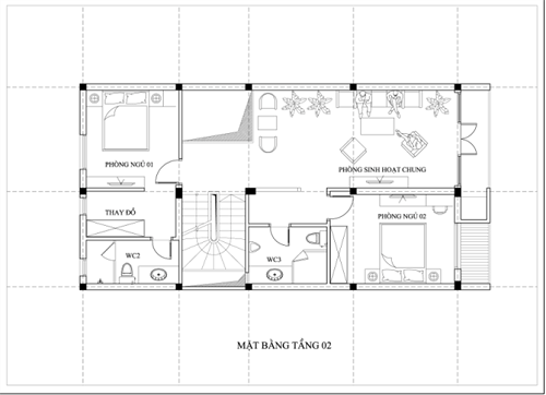
Mặt bằng tầng 2 bố trí không gian phòng sinh hoạt chung cùng với hai phong ngủ
Thiết kế nhà phố có chiều rộng 7m
Phòng sinh hoạt chung với diện tích vừa đủ kết hợp với sự hài hòa về màu sắc tạo nên không gian thư giãn thoải mái cho thành viên trong gia đình
Thiết kế nhà phố có chiều rộng 7m
Phòng ngủ sử dụng tông màu trầm nhưng rất bắt mắt nhờ vào sàn gỗ có thiết kế ấn tượng
Thiết kế nhà phố có chiều rộng 7m
Bố trí nội thất đơn giản, tùy thuộc vào đối tượng sử dụng
Thiết kế nhà phố có chiều rộng 7m
Nội thất nhà vệ sinh hiện đại, được sắp xếp trong không gian phòng ngủ ở mỗi tầng
Thiết kế nhà phố có chiều rộng 7m
Mặt bằng tầng 3 bố trí 2 phòng ngủ, phòng thờ và khoảng ban công rộng rãi phía trước làm không gian thư giãn cho thành viên trong gia đình
Thiết kế nhà phố có chiều rộng 7m
Không gian khu vực sân thượng ngôi nhà phố rộng 7m

Với vị trí ban công phía trước nhà, ngoài việc bố trí cây xanh, cây hoa tạo cảnh quan xanh mát thì gia chủ có thể đặt vào đó một bộ bàn ghế. Đây cũng là không gian sinh hoạt chung cho cả gia đình khi muốn có giây phút thư giãn, thoải mái.

Nguồn: An Bảo Khang

Từ khóa: Đơn giá thiết kế nhàxây nhà trọn góigiá xây dựng nhà phần thô năm 2020 | công ty sửa chữa nhà huyện Hóc Môn