Thiết kế biệt thự mini 3 tầng
Tiến độ
Quy mô
Diện tích
Ngày khởi công
Ngân sách

Là mẫu thiết kế biệt thự mini 3 tầng với diện tích 14x12m mang đến dáng dấp bình dị và mộc mạc, tạo nên không gian sống đẳng cấp như mơ các cho gia đình hiện nay.
Điểm đặc biệt trong thiết kế của mẫu biệt thự này đó chính là những đường nét trong kiến trúc. Đó chính là sự kết hợp hài hòa giữa đường ngang dọc kết hợp với điểm nhấn tại vị trí cửa, ban công.
Phần mặt tiền của căn biệt thự đẹp, rộng và thoáng cùng với lối đi trong vườn rất tiện ích sẽ mang đến gia chủ không gian sống xanh và mát mẻ. Đặc biệt thiết kế các phòng hợp lý và đầy đủ, đảm bảo cho một cuộc sống tiện nghi và hiện đại.
Sau đây là chi tiết mẫu thiết kế biệt thự mini 3 tầng này:
Mẫu thiết kế biệt thự toát lên vẻ đẹp bình dị và mộc mạc cùng với điểm nhấn nổi bật trong đường nét ngang, dọc thiết kế
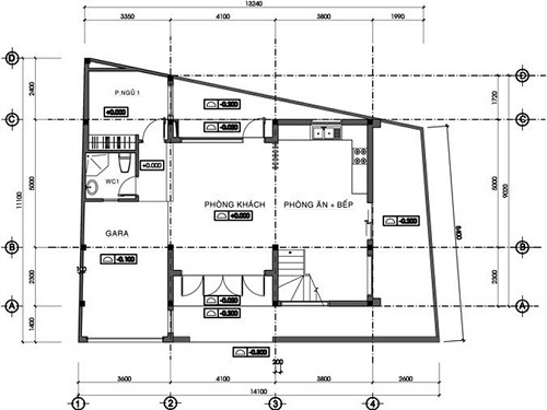
Mặt bằng tầng 1 lấy chỗ làm gara để xe phía trước. Bên trong là không gian phòng khách, phòng bếp, phòng ăn và phòng ngủ
Phòng khách thân thiện và thoáng đãng với chất liệu gỗ cùng với các món đồ nội thất sáng màu và được đặt cạnh cửa với khoảng vườn xanh mát bên ngoài luôn mang đến sự thông thoáng và cảm giác dễ chịu cho toàn bộ biệt thự
Ghế nghỉ được bố trí khéo léo ở dưới cầu thang, tạo nơi nghỉ chân cho thành viên gia đình. Đặc biệt với hệ thống cửa kính cùng với giếng trời bên ngoài, không gian nghỉ luôn có đủ ánh sáng cần thiết mang đến cảm giác dễ chịu và thư giãn
Phòng ăn liền kề với phòng bếp. Vẫn chú trọng sử dụng nội thất gỗ, hướng ra không gian bên ngoài vườn giúp không gian phòng ăn luôn thoáng đãng
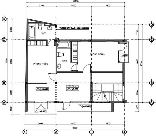
Không gian tầng 2 của căn biệt thự bố trí phòng ngủ và phòng sinh hoạt chung cho cả gia đình
Hướng đến sự thân thiện, bình dị và mộc mạc vì thế nội thất phòng ngủ đơn giản với chất liệu chính bằng gỗ. Giường ngủ đặt ở gần cửa, với nguồn ánh sáng và không khí bên ngoài giúp căn phòng ngủ luôn có sự thông thoáng
Bày biện màu sắc nội thất hài hòa, luôn tạo cảm giác thư thái và dễ chịu cho không gian phòng ngủ
Phòng sinh hoạt chung được đặt trên không gian tầng 2 giúp thành viên trong gia đình có giây phút thư giãn thoải mái
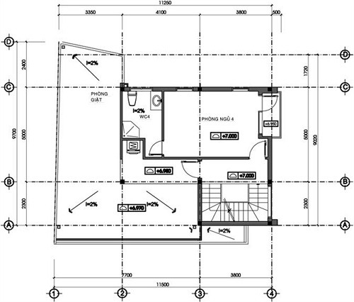
Mặt bằng tầng 3 bố trí không gian phòng ngủ và phòng giặt đồ
Phòng giặt đồ hiện đại trên không gian tầng 3
Phòng vệ sinh với thiết kế hiện đại được đặt trong không gian phòng ngủ
Mặt trước ban công của biệt thự có thể để nhiều chậu cây xanh và bộ bàn ghế để thư giãn lúc chiều về
Nguồn: An Bảo Khang
Từ khóa: thiết kế nhà | thiết kế nhà phố | đơn giá xây dựng nhà | thiết kế biệt thự | giá xây dựng phần thô
TÍNH CHI PHÍ XÂY NHÀ THEO m2
Công cụ tính chi phí giúp anh chị dự trù ngân sách chính xác đến 99%.
Để nhận báo giá rõ ràng theo đúng nhu cầu, anh chị vui lòng để lại thông tin, ABK sẽ tư vấn ngay!












