Mẫu thiết kế nhà phố hiện đại 2 tầng 1 tum
Tiến độ
Quy mô
Diện tích
Ngày khởi công
Ngân sách

Là mẫu thiết kế nhà phố hiện đại 2 tầng 1 tum toát lên vẻ hiện đại với những mảng khối kiến trúc mang đến vẻ khỏe khoắn cho ngôi nhà, cũng như sự kết hợp hài hòa về màu sắc của sơn tường và khung cửa.
Với mong muốn mang đến một không gian xanh giữa lòng thành phố hiện đại, kiến trúc sư đã xây dựng nên thiết kế nhà phố hiện đại 2 tầng 1 tum.
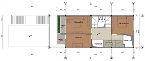
Mặt bằng tầng 1 và tầng 2 được bố trí hợp lý về không gian các phòng, từ đó đảm bảo được công năng đáp ứng nhu cầu sinh hoạt của thành viên trong gia đình. Bên cạnh đó, tiểu cảnh trong nhà được trang trí rất đẹp mắt cùng với lỗ thông tầng giúp ngôi nhà luôn tràn ngập ánh sáng.
Phần tầng tum của sân thượng sẽ được bố trí làm sân phơi quần áo và giặt giũ. Tại đây có thể bố trí nhiều cây xanh, tạo nên cảnh quan thoáng đãng để các thành viên trong gia đình có thể tập luyện thể thao.
Sau đây là chi tiết của mẫu thiết kế nhà phố hiện đại 2 tầng 1 tum:










Trên tầng tum trồng nhiều hoa và cây xanh để tạo nên cảnh quan xanh mát và thoáng đãng. Ngoài việc sử dụng làm nơi giặt giũ và phơi đồ thì thành viên trong gia đình có thể lên đây tập thể dục, hít thở không khí trong lành
Nguồn: An Bảo Khang
Từ khóa: giá xây dựng nhà | sửa chữa nhà trọn gói | công ty sửa chữa nhà quận 5 | sửa chữa nhà cấp 4
TÍNH CHI PHÍ XÂY NHÀ THEO m2
Công cụ tính chi phí giúp anh chị dự trù ngân sách chính xác đến 99%.
Để nhận báo giá rõ ràng theo đúng nhu cầu, anh chị vui lòng để lại thông tin, ABK sẽ tư vấn ngay!