Mẫu thiết kế nhà phố 4 tầng độc đáo với 3 phòng ngủ
Tiến độ
Quy mô
Diện tích
Ngày khởi công
Ngân sách

Mẫu thiết kế nhà phố 4 tầng 4x20m với hình dáng khỏe khoắn và chất liệu hiện đại, góp phần tạo nên một không gian sống thông thoáng và năng động.
Được xây dựng giữa lòng phố xá hiện đại vì thế cho nên kiến trúc sư đặc biệt chú ý vào phần mặt tiền của ngôi nhà, để mang đến dáng vẻ khỏe khoắn và hiện đại nhất. Với những mảng tường được bố trí khéo léo giữa các phần nhô ra và lõm vào để tạo nên hiệu quả trang trí một cách tốt nhất.
Bên cạnh đó, việc sử dụng chất liệu men ốp tường cũng phần nào tạo nên sự bền vững và hiện đại cho toàn bộ không gian của ngôi nhà.
Với mục đích tạo nên một không gian sống tiện nghi và đầy đủ nhất cho thành viên ở giữa lòng thành phố hiện đại, bên cạnh không gian phòng khách, phòng bếp, phòng ăn, 3 phòng ngủ ra thì còn có không gian sân phơi rộng rãi và phòng sinh hoạt chung dành cho các thành viên trong gia đình có giây phút thư giãn, giải trí cùng với nhau.
Sau đây là chi tiết mẫu thiết kế nhà phố 4 tầng 3 phòng ngủ hiện đại

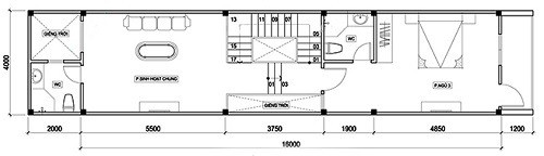
Tầng 1 với thiết kế sân trước rộng thoáng, có thể làm chỗ để xe. Rồi đến không gian phòng khách, phòng bếp và mặt sân sau. Ở tầng này, chỉ cần bố trí tạo tiểu cảnh sân vườn trong nhà hợp lý là có khoảng không gian thông thoáng.












Nguồn: An Bảo Khang
Từ khóa: giá xây nhà | giá xây dựng nhà phần thô | công ty sửa chữa nhà quận Tân Bình | chi phí sửa nhà 6 tầng
TÍNH CHI PHÍ XÂY NHÀ THEO m2
Công cụ tính chi phí giúp anh chị dự trù ngân sách chính xác đến 99%.
Để nhận báo giá rõ ràng theo đúng nhu cầu, anh chị vui lòng để lại thông tin, ABK sẽ tư vấn ngay!