Mẫu thiết kế nhà phố 1 trệt 1 lửng 2 lầu sân thượng ở Bình Dương
Tiến độ
Quy mô
Diện tích
Ngày khởi công
Ngân sách

Để đưa ra phương án thiết kế phù hợp với nhu cầu thực tế đội ngũ kiến trúc sư An Bảo Khang luôn dựa vào yêu cầu chi tiết và cụ thể của mỗi gia đình. Chị Thảo ở Bình Dương tìm đến An Bảo Khang sau khi đã tham khảo rất nhiều công ty thiết kế khác cũng như xem qua những mẫu nhà đẹp khác nhau gia đình chị Thảo cũng cũng đã quyết định lựa chọn An Bảo Khang là đơn vị thiết kế thi công xây nhà trọn gói cho gia đình chị Thảo. Dưới đây là chi tiết về mẫu thiết kế nhà đẹp của chị Thảo, mới quý vị cùng An Bảo Khang cùng xem qua.
Giới thiệu về mẫu thiết kế nhà phố 1 trệt 1 lửng 2 lầu sân thượng nhà chị Thảo ở Bình Dương
- Chủ đầu tư: Nguyễn Thị Thanh Thảo
- Diện tích: 5,2m x 14,3m
- Quy mô: 1 trệt 1 lửng 2 lầu
- Phong cách thiết kế: Nhà phố 3 tầng sân thương phong cách tân cổ điển
- Hạng mục công trình: Xây nhà trọn gói tại Bình Dương (An Bảo Khang miễn phí thiết kế)
1. Hình ảnh thiết kế nhà phố 1 trệt 1 lửng 2 lầu sân thượng nhà chị Thảo
Đến với An Bảo Khang chị Thảo muốn thiết kế nhà 1 trệt 1 lửng 2 lầu sân thương kiến trúc tân cổ điển sang trọng, Không gian mặt tiền nhà chị Thảo dùng những đường nét, hoa văn phào chỉ tối giản cùng với gam màu chủ đạo là màu trắng vừa tăng sự hiện đại vừa có chút cổ điển.
Ngôi nhà của chị Thảo khi nhìn từ xa rất nổi bật với hình khối khang trang kết hợp với những đường nét, họa tiết trang trí tỉ mỉ kết hợp với màu trắng tạo nên mẫu nhà 3 tầng sang trọng. Mặt tiền nhà với hệ thống trụ cột vững chắc và cứng cáp kết hợp với hệ thống cửa kính khung nhôm mang đến sự thông thoáng hơn, mát mẻ hơn và nhận được nhiều ánh sáng phù hợp với vị trí để kinh doanh


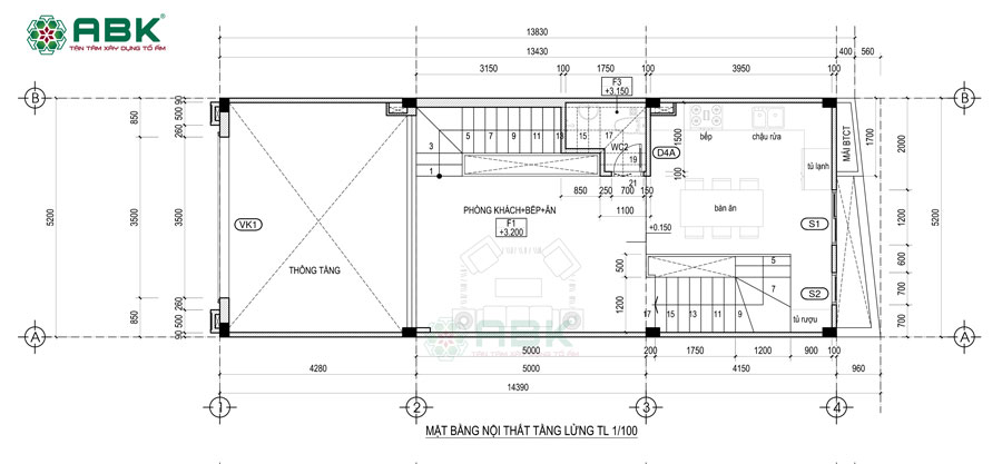
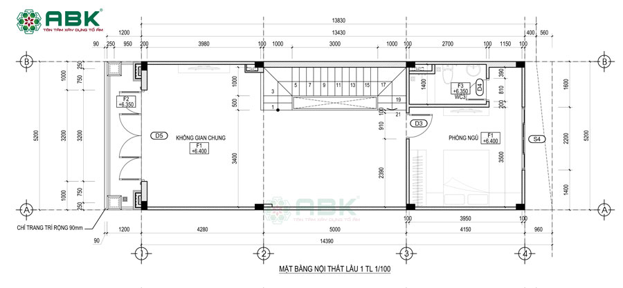
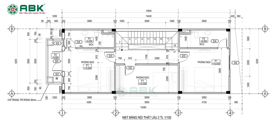
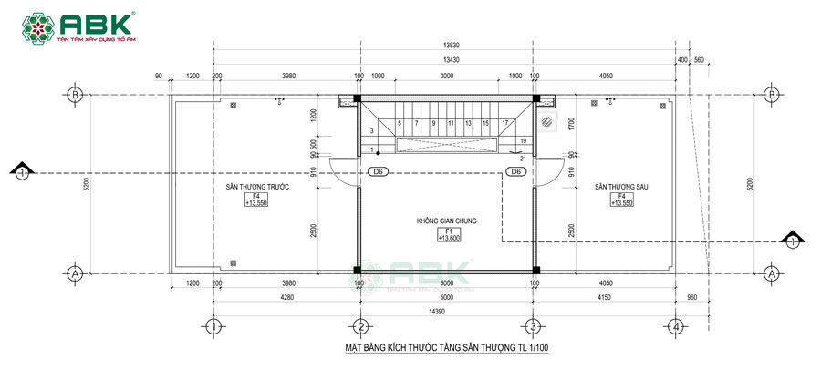
2. Bố trí công năng nhà chị Thảo ở Bình Dương
Về công năng, chị Thảo mong muốn tầng trệt dùng để kinh doanh phía sau là nhà vệ sinh và sân sau để chị Thảo có thể thêm vài tiểu cảnh nhỏ tại phòng khách, sân sau. Tầng lửng có 1 phòng khách, phồng bếp + ăn và nhà vệ sinh chung. Lầu 1 gồm không gian sinh hoạt chung của gia đình, 1 phòng ngủ và 1 nhà vệ sinh và ban công phía trước. Lầu 2 gồm 3 phòng ngủ, 2 nhà vệ sinh, và ban công phía trước. Sân thường nhà chị Thảo gồm có sân thượng trước sau và không gian chung để gia đình chị có thể sinh hoạt vào mỗi buổi tối.





Xem thêm những mẫu thiết kế độc đáo xu hướng hiện nay
>>> Mẫu thiết kế nhà phố liền kề 4 tầng tại quận 2
>>> Mẫu thiết kế nhà phố 3 tầng 1 sân thượng đẹp tại Quận Tân Bình
>>> Những mẫu nhà phố giá 1 tỷ 2 đẹp sang trọng
>>> Mẫu thiết kế nhà phố 2 tầng có gara
Thông tin liên hệ An Bảo Khang
Quý vị đang có nhu cầu xây nhà 1 trệt 1 lừng 2 lầu sân thượng giống nhà chị Thảo ở Bình Dương hoặc đã có ý tưởng thiết kế cho ngôi nhà tương lai của mình thì đừng ngần ngại mà hay liên hệ ngay với An Bảo Khang qua số Hotline: 090 220 1389 để được An Bảo Khang tư vấn chi tiết và miễn phí, trong trường hợp quý vị ký hợp đồng xây nhà An Bảo Khang sẽ miễn phí luôn chi phí thiết kế nhà cho quý vị ạ. Cảm ơn quý vị đã quan tâm đến mẫu thiết kế nhà phố đẹp của An Bảo Khang. Chúc quý vị thật nhiều sức khỏe!

Từ khóa: đơn giá xây dựng phần thô | giá xây nhà 2021 | công ty thiết kế xây dựng | xây dựng nhà biệt thự | nhà thầu xây nhà | xây nhà quận 1 | chi phí xây nhà tại quận 2 | xây nhà quận 3 | xây nhà quận 4 | xây nhà quận 5 | xây nhà quận 6 | xây nhà quận 7 | xây dựng nhà quận 8 | giá xây nhà quận 9 | xây nhà quận bình thạnh | xây nhà quận tân phú | xây nhà quận phú nhuận | xây nhà quận gò vấp | giá xây nhà 2 tầng 50m2 | sửa nhà | sửa nhà giá rẻ | dịch vụ sửa nhà | báo giá sửa chữa nhà 2021 | xây nhà ở Bình Dương
TÍNH CHI PHÍ XÂY NHÀ THEO m2
Công cụ tính chi phí giúp anh chị dự trù ngân sách chính xác đến 99%.
Để nhận báo giá rõ ràng theo đúng nhu cầu, anh chị vui lòng để lại thông tin, ABK sẽ tư vấn ngay!