Mẫu thiết kế biệt thự song lập 3 tầng
Tiến độ
Quy mô
Diện tích
Ngày khởi công
Ngân sách

Đây là mẫu thiết kế biệt thự song lập được xây dựng trên diện tích 300m2. Với phong cách thiết kế hiện đại tạo nên sự sang trọng của căn biệt thự.
Điểm nhấn của căn biệt thự nằm ở việc sử dụng tông màu sáng kết hợp với việc bố trí tiểu cảnh cây xanh hợp lý, làm căn biệt thự trở nên nổi bật.
Hệ thống cửa sử dụng cho toàn bộ căn biệt thự song lập là cửa kính, tôn lên vẻ hiện đại nhưng đồng thời cũng đóng vai trò quan trọng trong việc tiếp nhận nguồn ánh sáng tự nhiên từ phía bên ngoài.
Với mục tiêu mang đến không gian sống đẳng cấp và tiện lợi, không gian phòng được bày trí đầy đủ kết hợp với nội thất hiện đại tạo nên không gian sống mà bất kì ai cũng mơ ước.
Sau đây là chi tiết mẫu thiết kế biệt thự song lập 3 tầng hiện đại:
Căn biệt thự mang đến dáng vẻ hiện đại khi sử dụng tông màu sáng, kết hợp với việc bố trí tiểu cảnh một cách hài hòa tạo nên không gian sống nhiều người mơ ước
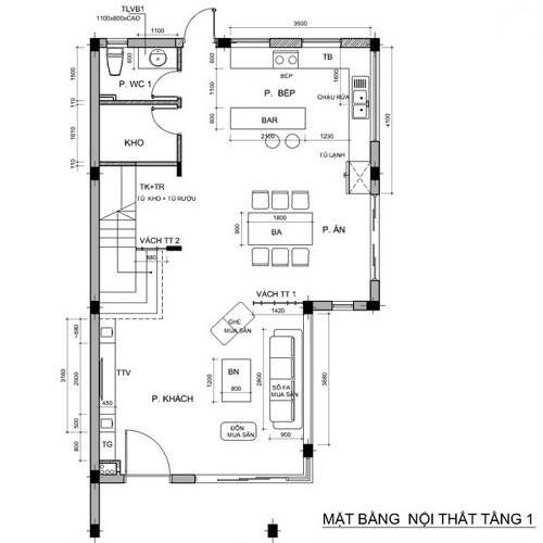
Mặt bằng tầng 1 được bố trí không gian phòng khách, phòng bếp, phòng ăn và phòng vệ sinh
Phòng khách bài trí các món đồ nội thất có gam màu đậm tạo nên sự tương phản rõ nét với màu sơn tường và màu trần nhưng lại mang đến hiệu quả trang trí cao. Góp phần mang đến không gian phòng khách sang trọng và đẳng cấp
Phòng bếp và phòng ăn được bố trí liền kề với nhau
Cũng giống như phòng khách, phòng bếp sử dụng tông màu đậm cùng với thiết kế bàn bar độc đáo tạo nên sự sang trọng cho phòng bếp. Đặc biệt, điểm nhấn của phòng bếp nằm ở hệ thống đèn trang trí có thiết kế độc đáo ở phía trên
Phòng ăn bố trí bàn ăn dài với chất liệu bằng gỗ. Bàn ăn được đặt gần cửa sổ góp phần mang đến cảm giác dễ chịu khi thưởng thức bữa ăn cho các thành viên trong gia đình
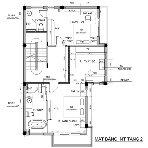
Khu vực tầng 2 sẽ bố trí không gian 2 phòng ngủ, phòng ngủ chính và phòng ngủ cho bé trai
Phòng ngủ chính sử dụng nội thất chủ yếu bằng chất liệu gỗ, trang bị đầy đủ các món đồ nội thất cần thiết như bàn trang điểm tủ quần áo, tivi…
Phòng ngủ được bố trí cạnh bên cửa sổ mang đến sự thoải mái và thông thoáng cho căn phòng
Phòng ngủ chính rộng rãi cho nên được bài trí phòng vệ sinh bên trong. Ưu tiên sử dụng nội thất hiện đại với chất liệu tốt nhất
Phòng ngủ của bé trai cũng được đặt ở không gian tầng 2. Thiết kế gam màu sinh động phù hợp với sự năng động của bé trai
Tầng 3 bố trí một không gian phòng ngủ cho bé gái, phòng thờ, phòng thư giãn, phòng vệ sinh và sân phơi
Phòng ngủ bé gái lựa chọn tông màu nhẹ nhàng, nữ tính
Phòng đọc sách kết hợp phòng chơi của các thành viên trong gia đình
Phòng thờ sang trọng và tôn nghiêm
Nguồn: An Bảo Khang
Từ khóa: thiết kế nhà đẹp | thiết kế nhà phố | giá xây nhà | thiết kế nhà biệt thự | giá xây dựng phần thô
TÍNH CHI PHÍ XÂY NHÀ THEO m2
Công cụ tính chi phí giúp anh chị dự trù ngân sách chính xác đến 99%.
Để nhận báo giá rõ ràng theo đúng nhu cầu, anh chị vui lòng để lại thông tin, ABK sẽ tư vấn ngay!













