mẫu biệt thự với thiết kế 2 tầng 7x13m, đây được xem là mẫu thiết kế biệt thự nhỏ đẹp phù hợp với mọi địa hình hiện nay.

Tận dụng lối thiết kế hiện đại để tạo nên dáng vẻ khỏe khoắn cho cả căn biệt thự. Đặc biệt, kiến trúc sư chú trọng trong việc tạo nên những điểm nhấn nhá trong kiến trúc góp phần trang trí cho căn biệt thự thêm phần nổi bật.

Sử dụng hệ thống cửa trong căn biệt thự là cửa kính vừa tôn lên nét hiện đại cho căn biệt thự nhưng đồng thời cũng giúp tạo nên sự thông thoáng, khi tận hưởng được nguồn ánh nắng từ bên ngoài. Với ban công rộng mở ở tầng 2, có thể bố trí thêm cây để tạo thêm không gian xanh, gần gũi với thiên nhiên.

Thiết kế của căn biệt thự với 2 tầng vừa đủ để bố trí không gian chức năng, đảm bảo sinh hoạt tiện nghi cho thành viên trong gia đình.

Sau đây là chi tiết mẫu thiết kế biệt thự nhỏ đẹp:

Căn biệt thự với dáng vẻ khỏe khoắn và những điểm nhấn nhá trong kiến trúc, nổi bật giữa lòng phố xá đông đúc

Hệ thống cửa kính vừa mang nét hiện đại nhưng đồng thời tạo nên sự thông thoáng cho cả căn biệt thự

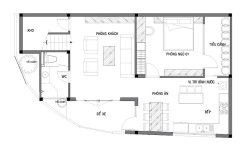
Vị trí tầng 1 với khoảng sân rộng rãi làm chỗ để xe và bố trí tiểu cảnh xung quanh tạo nên không gian xanh cho căn biệt thự

Phòng khách sử dụng bộ ghế sofa có kích thước vừa phải và bàn trà nhỏ với gam màu sáng nổi bật. Điểm nhấn của phòng khách nằm ở họa tiết trang trí độc đáo trên tường

Phòng bếp được bố trí với phòng ăn trong cùng một không gian. Điều này vừa giúp tiết kiệm diện tích vừa giúp tạo nên sự thuận tiện khi bài trí đồ ăn. Nội thất phòng bếp hiện đại, đặc biệt sử dụng bàn nấu kết hợp làm bàn bar rất tiện lợi. Điểm nhấn của phòng bếp và phòng ăn là hệ thống đèn chùm và tranh trang trí trên tường

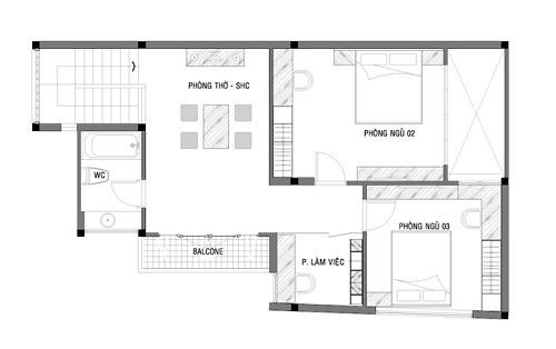
Tầng 2 của biệt thự bố trí phòng ngủ, phòng thờ và ban công

Phòng ngủ sử dụng món nội thất cần thiết và tạo điểm nhấn với bức tranh trang trí độc đáo trên tường

Đặc biệt, ưu tiên lựa chọn tông màu sáng để tăng thêm sự rộng rãi cho không gian phòng

Phòng vệ sinh thiết kế đơn giản, sử dụng đồ nội thất hiện đại

Ở ban công có thể bố trí nhiều chậu hoa, cây cảnh và đặt một bàn ghế nhỏ để đọc sách và thư giãn

Phòng thờ được đặt một vị trí trên tầng 2 biệt thự. Ưu tiên sử dụng tông màu sáng khi kết hợp với chất liệu gỗ sẽ tạo nên được sự uy nghiêm cho phòng thờ

Nguồn: An Bảo Khang

Từ khóa: thiết kế nhà đẹp | thiết kế nhà phố | giá xây nhà | thiết kế nhà biệt thự | giá xây dựng phần thô