Mẫu nhà góc 1 trệt 2 lầu diện tích 54m2
Tiến độ
Quy mô
Diện tích
Ngày khởi công
Ngân sách

Nhà góc vị trí khá thuận lợi để quý vị vừa có thể ở vừa có thể kinh doanh, tuy nhiên thiết kế như thế nào để hài hòa giữa màu sắc, không gian và thu hút khách hàng khi kinh doanh là điều là mà quý vị cần phải chú ý. Bài viết dưới đây An Bảo Khang sẽ gửi đến quý vị mẫu nhà góc hiện đại được thiết kế bởi đội ngũ kỹ sư của An Bảo Khang mới quý vị cùng xem qua!
Mẫu nhà góc 1 trệt 2 lầu diện tích 54m2
Điểm chính của thiết kế chính là các mảng khối và kết hợp màu sắc hài hòa, trang trí họa tiết đơn giản để làm nổi bật hình khối và tổng thể không gian thu hút ánh nhìn, các vật liệu như kính cường lực, lam gỗ và gạch bông gió được đội ngũ kỹ sư An Bảo Khang đưa vào để giúp ngôi nhà của quý vị luôn được thông thoáng, đảm bảo lượng ánh sáng tự nhiên đi vào nhà vừa đủ.


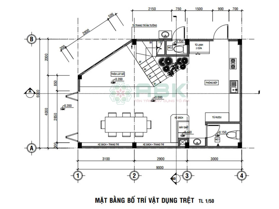
Bố trí công năng của mẫu nhà góc diện tích 54m2
Mẫu nhà góc diện tích 54m2 được thiết kế với công năng gồm phòng khách, phòng ăn, bếp, phòng học, 5 phòng ngủ, 5 phòng vệ sinh, chi tiết như sau:
- Tầng trệt: Gồm không gian sinh hoạt chúng ở phía cầu thang có vườn cảnh nhỏ, 1 nhà bếp, 1 phòng giặc, các kệ để sách

- Lầu 1: Gồm phòng học, 2 phòng ngủ, 1 nhà vệ sinh, cùng với đó là nơi sinh hoạt chung cho gia đình, vừa là nơi để đọc sách đảm bảo được sự yên tĩnh và bố trí nội thất phòng ngủ cũng được thiết kế phù hợp đảm bảo tiện nghi

- Lầu 2: Gồm 3 phòng ngủ rộng rãi, 2 nhà vệ sinh riêng biệt, các phòng ngủ đều có bố trí vách kính, cửa sổ hướng ra ban công rộng thoáng,đảm bảo vừa đủ ánh sáng và gió tự nhiên cho không gian bên trong, nội thất các phòng đầy đủ tiện nghi cho sinh hoạt hàng ngày.

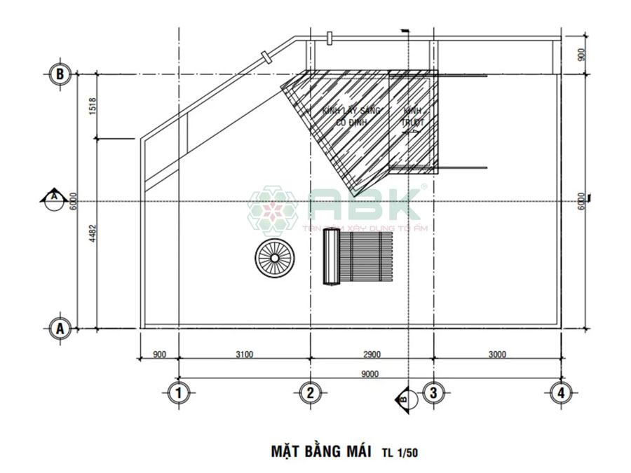
- Cuối cùng là phần mái được thiết kế để đảm bảo lấy sáng đủ cho ngôi nhà và sự thoáng mát cho gia chủ

Xem thêm các thiết kế khác của An Bảo Khang:
- Mẫu thiết kế nhà phố 2 tầng mái thái
- Mẫu thiết kế nhà phố 4 tầng tại Gò Vấp
- Mẫu thiết kế nhà phố 4 tầng kiến trúc cổ điển 5x18m
- Mẫu thiết kế nhà phố 3 tầng rưỡi mái thái
Thông tin liên hệ An Bảo Khang
Trên đây là mẫu nhà góc với diện tích 54m2 An Bảo Khang gửi đến quý vị tham khảo, nếu quý vị chưa có ý tưởng hoặc đã có nhưng chưa có giải pháp thiết kế và xây nhà phù hợp quý vị có thể liên hệ với An Bảo Khang qua số Hotline: 0909 08 1389 để được tư vấn miễn phí. Cảm ơn quý vị đã giành chút thời gian xem qua mẫu thiết kế nhà phố của An Bảo Khang.

Từ khóa: giá xây dựng phần thô | giá xây nhà 2024 | công ty thiết kế xây dựng | xây nhà giá rẻ | giá thiết kế nhà | xây dựng nhà biệt thự | nhà thầu xây nhà | xây nhà cấp 4 | xây nhà quận 1 | chi phí xây nhà tại quận 2 | xây nhà quận 3 | xây nhà quận 4 | xây nhà quận 5 | xây nhà quận 6 | xây nhà quận 7 | xây nhà quận 10 | giá xây nhà quận 11 | xây nhà quận 12 | xây nhà quận tân bình | xây nhà quận bình tân | xây nhà quận phú nhuận | xây nhà quận gò vấp | nhà thầu xây dựng nhà bình chánh | xây nhà huyện cần giờ | xây nhà huyện nhà bè | sửa nhà | sửa nhà giá rẻ |
TÍNH CHI PHÍ XÂY NHÀ THEO m2
Công cụ tính chi phí giúp anh chị dự trù ngân sách chính xác đến 99%.
Để nhận báo giá rõ ràng theo đúng nhu cầu, anh chị vui lòng để lại thông tin, ABK sẽ tư vấn ngay!