Căn biệt thự hàng triệu đô la này với tên gọi “House 81” có vị trí đặc địa tại khu đô thị Thảo Điền, quận 2, TP. HCM. Nơi đây tập trung nhiều biệt thự sang trọng, khu biệt lập dành riêng cho người ngoại quốc. Với tổng diện 484m2, ngôi nhà được xây dựng thoải mái trên nền đất 631m2 gồm nhà và vườn cây. Đơn vị thiết kế nên ngôi nhà tuyệt đẹp này là công ty kiến trúc MimA NY & Real Architecture với tổng chi phí xây dựng lên đến hơn 2 triệu USD.

Đây là căn biệt thự độc đáo và hiện đại nhất được trang Trendir – tạp chí chuyên đánh giá về nhà đẹp miêu tả là “Ngôi nhà được thiết kế theo lối tư duy tối giản, các hình khối sắc sảo với những đường nét gọn gàng. Mặt tiền của căn biệt thự gồm hai khối hình vuông được gắn lồng vào nhau cùng một kết cấu độc đáo, thú vị thể hiện sự sang trọng, đẳng cấp thượng hạng.” Trang này cũng phân tích rất kỹ về kết cấu cũng như ý tưởng thiết kế của kiến trúc sư.

Cùng xem qua hình ảnh về căn biệt thự tuyệt đẹp này:

Ngôi biệt thự triệu đô này được tạo thành từ hai khối vuông vức, sắc sảo.

Toàn bộ cửa sổ, cửa ra vào được lắp kính và mở ra, đóng vào theo nguyên lý trượt.

Hàng cây phủ bóng và những sóng nước lăn tăn làm mềm mại những đường nét vuông thành sắc cạnh.

Khu vực sinh hoạt chung thiết kế khoáng đạt nhìn ra bể bơi phía ngoài nhà.

Trắng – nâu sậm là tone màu chính của phòng ăn, phòng bếp.

Phòng làm việc tại gia kín đáo

Sự tiếp nối thú vị trong không gian chiều dọc được tạo nên bởi bóng của các khung cửa và cầu thang.

Phòng gia đình ấm cúng với gỗ lát sàn màu nâu vàng trầm.

Hành lang phía ngoài tầng 2 được trang bị cửa bằng tre thoáng mát mà vẫn giữ được sự riêng tư cho gia chủ.

Phòng ngủ lớn.

Phòng tắm thiết kế theo hình chữ L.

Bức tường gạch nổi cùng với các ô gạch lát sàn là điểm nhấn cho không gian phòng tắm toàn màu trắng.

Khu vực nướng barbeque được coi là khối thứ ba của ngôi biệt thự.

Hai chiếc ghế có hình dạng nửa vòng tròn vui mắt là điểm nhấn đối lập với các đường thẳng sắc bén nhưng vẫn hài hòa với chủ đề hình học xuyên suốt.

Gạch lát sân bằng bê tông nhìn qua tưởng chừng là các đường cong ngẫu hứng, nhưng thực chất chúng chỉ cong ở các góc, còn lại là đường thẳng.

Những tấm gạch lát sân tạo nên hoạt tiết lặp lại, tương tự với sự lặp lại của gạch legstone trên tường và đường viền quanh hồ bơi.

Sự kết hợp của các kiểu họa tiết lặp lại trên các loại vật liệu làm nổi bật hình khối sắc cạnh của hồ bơi và hai khối lớn của biệt thự.

Cảnh quan xung quanh ngôi biệt thự triệu đô này cũng có sự lặp lại họa tiết nhờ cách sắp xếp các loài cây xanh và hàng rào bao quanh.

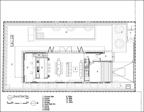
Mặt cắt tầng trệt của biệt thự. Gia chủ có thể vào tầng trệt từ hai lối: qua gara hoặc qua chiếc cổng ngay bên cạnh.

Cầu thang ở lối vào dẫn lên không gian phía trên nhà để xe với phòng ngủ, phòng tắm và khu vực nghiên cứu. 

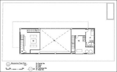
Phòng ngủ này có một ban công riêng giống với phòng ngủ lớn trong Master suite. Cả bốn phòng ngủ đều có phòng tắm riêng.

Nguồn: An Bảo Khang

Từ khóa:  xây nhà trọn gói | giá xây nhà phần thô | thiết kế nhà đẹp | thiết kế nhà phố | thiết kế xây dựng nhà